Maison neuve à
Ablon-sur-Seine
(94480) Référence :
AM2417510_2
Prix du projet : Maison avec Terrain
prix 560 000 €
- 7 pièces
- 4 chambres
- Surface maison 160 m2
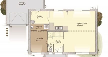
Maison de 7 pièces (160 m²) à construire à Ablon-sur-Seine
MAISON 7 PIÈCES NEUVE - PROCHE DE PARIS
A CONSTRUIRE : à quelques minutes du RER Ablon (ligne C), votre agence Maisons Balency Saint-Maur-des-Fossés est ravie de vous présenter cette maison de 7 pièces de 160 m² à Ablon-sur-Seine (94480). Elle inclut quatre chambres, une cuisine et deux salles de bains.
Le terrain de la maison s'étend sur 405 m².
Il y a des établissements scolaires du primaire et du secondaire à moins de 10 minutes à pied, tout comme une structure d'accueil pour les enfants en bas âge. Niveau transports, on trouve la station de RER Ablon (ligne C) ainsi que la gare Ablon-sur-Seine à proximité.
Son prix de vente est de 560 000 €.
Contactez notre constructeur (MONTANIER Aurelien : 06-24-66-88-34) pour toute question sur cette maison ou sur les modalités de vente.
Annonce proposée par un Agent Commercial Partenaire.
Mentions légales
Terrain proposé par un partenaire foncier selon disponibilités et autorisation de publicité au prix de 217 000 €. Hors droit d'enregistrement et frais de notaire. Terrain + Maison proposés au prix de 560 000 € (Hors branchements et raccordements, papiers peints, peintures, revêtement de sol dans les chambres. Tarif modifiable sans préavis). Etiquette énergie : A. Différents modèles disponibles pour ce terrain. Assurances et garanties du constructeur (RC professionnelle, décennale, dommage ouvrage, garantie de remboursement de l'acompte, livraison à prix et délai convenu) : https://www.maisons-balency.fr/informations-legales/. HEXAOM Services est enregistré auprès de l'ORIAS en tant que Courtier en financement, Niveau 1, sous le numéro 14001345.Agence Maisons Balency de Saint-Maur-des-Fossés (94100)
- Téléphone :
- 01 87 36 85 37
- Adressse :
- 12 avenue de la république
94100 Saint-Maur-des-Fossés, France
