Maison neuve à
Achères-la-Forêt
(77760) Référence :
AM2352844_3
Prix du projet : Maison avec Terrain
prix 312 928 €
- 5 pièces
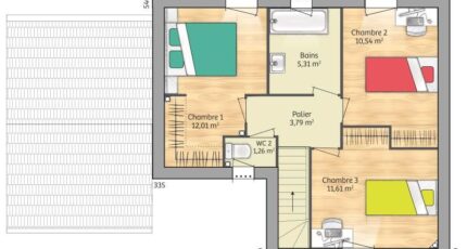
- 3 chambres
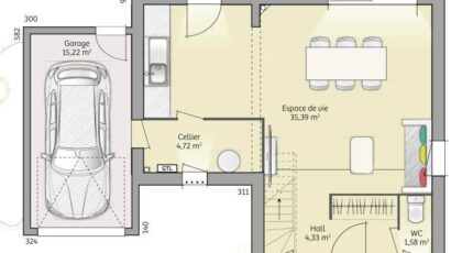
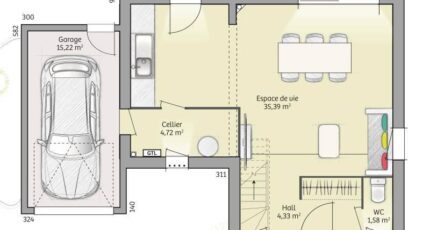
- Surface maison 90 m2
PROJET TERRAIN + MAISON + NOTAIRE + VIABILISATION = 312 928€
À proximité de la gare de Bourron-Marlotte-Grez (Paris à 1 h avec le Transilien R), nous vous présentons en vente à Achères-la-Forêt (77760), cette maison de 5 pièces de 90 m² et de 511 m² de terrain. Son intérieur offre trois chambres, une cuisine et une salle de bains.
Il s'agit d'une maison de 2 niveaux. Elle est neuve.
Il y a l'École Primaire Vaublas à moins de 10 minutes à pied. Niveau transports, on trouve la gare Bourron-Marlotte-Grez à moins de 10 minutes en voiture. Il y a une bibliothèque, un commerce et une épicerie à proximité du bien.
Elle est à vendre pour la somme de 312 928 €.
Contactez notre agence (Arnaud MOINE : 06-40-48-40-55) pour toute information sur cette propriété. Maisons Balency Moret-Loing-et-Orvanne est là pour vous accompagner à toutes les étapes de l'achat.
Annonce proposée par un Agent Commercial Partenaire.
Mentions légales
Terrain proposé par un partenaire foncier selon disponibilités et autorisation de publicité au prix de 114 000 €. Hors droit d'enregistrement et frais de notaire. Terrain + Maison proposés au prix de 198 928 € (Hors branchements et raccordements, papiers peints, peintures, revêtement de sol dans les chambres. Tarif modifiable sans préavis). Etiquette énergie : A. Différents modèles disponibles pour ce terrain. Assurances et garanties du constructeur (RC professionnelle, décennale, dommage ouvrage, garantie de remboursement de l'acompte, livraison à prix et délai convenu) : https://www.maisons-balency.fr/informations-legales/. HEXAOM Services est enregistré auprès de l'ORIAS en tant que Courtier en financement, Niveau 1, sous le numéro 14001345.Agence Maisons Balency de Moret-sur-Loing (77250)
- Téléphone :
- 09 78 81 26 91
- Adressse :
- 96 avenue de Fontainebleau
77250 Moret-sur-Loing, France
