Maison neuve à
Acquigny (27400) Référence : KXA2316482_4

Prix du projet : Maison avec Terrain

prix 354 600 €

  • 5 pièces
  • 3 chambres
  • Surface maison 120 m2

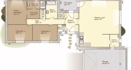
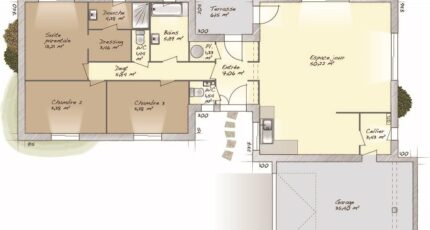
VENTE d'une maison de 5 pièces (120 m²) à Acquigny
PROCHE D'ÉVREUX - MAISON 5 PIÈCES NEUVE
En vente : à quelques kilomètres d'Évreux, votre agence Maisons Balency Boos est heureuse de vous proposer cette maison de 5 pièces de plain-pied de 120 m² à Acquigny (27400).
Son intérieur est composé de trois chambres, d'une cuisine et de deux salles de bains. Cette maison est neuve.
Le terrain du bien s'étend sur 690 m².
L'École Primaire Arc En Ciel se trouve à moins de 10 minutes à pied. Niveau transports en commun, il y a la gare Saint-Pierre-du-Vauvray à moins de 10 minutes en voiture. Les autoroutes A154 et A13 et la nationale N154 sont accessibles à moins de 5 km. On trouve deux tennis, deux boulangeries, un commerce, un bureau de poste, une supérette et une boucherie-charcuterie à quelques minutes de la maison.
Son prix de vente est de 354 600 €.
Contactez notre constructeur (Kévin XAVIER ALVES : 06-58-91-13-87) pour toute question sur la propriété et sur les modalités de vente. Donnez vie à vos projets immobiliers avec Maisons Balency Boos.

Annonce proposée par un Agent Commercial Partenaire.

Mentions légales

Terrain proposé par un partenaire foncier selon disponibilités et autorisation de publicité au prix de 86 000 €. Hors droit d'enregistrement et frais de notaire. Terrain + Maison proposés au prix de 268 600 € (Hors branchements et raccordements, papiers peints, peintures, revêtement de sol dans les chambres. Tarif modifiable sans préavis). Etiquette énergie : A. Différents modèles disponibles pour ce terrain. Assurances et garanties du constructeur (RC professionnelle, décennale, dommage ouvrage, garantie de remboursement de l'acompte, livraison à prix et délai convenu) : https://www.maisons-balency.fr/informations-legales/. HEXAOM Services est enregistré auprès de l'ORIAS en tant que Courtier en financement, Niveau 1, sous le numéro 14001345.

Contactez l'agence de Boos

02 35 80 66 66

    * Champs obligatoires

    Vos informations sont traitées par HEXAOM et transmises à un conseiller commercial qui vous contactera afin de répondre à votre demande. Les plans et images présentés sur notre site sont la propriété d’HEXAOM et ne peuvent pas être reproduits sans son accord. Pour retrouver notre politique de protection des données personnelles et exercer vos droits conformément à la « loi informatique et liberté » cliquez-ici.