Maison neuve à
Acquigny (27400) Référence : KXA2388059_1

Prix du projet : Maison avec Terrain

prix 412 000 €

  • 7 pièces
  • 4 chambres
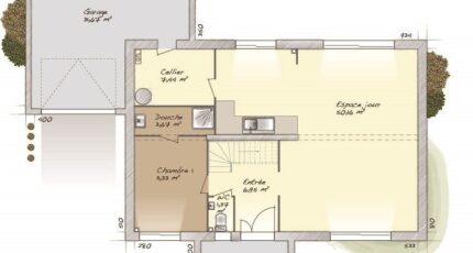
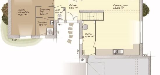
  • Surface maison 160 m2

Maison T7 (160 m²) à vendre à Acquigny
MAISON 7 PIÈCES NEUVE - PROCHE D'ÉVREUX
En vente à deux pas d'Évreux, nous vous proposons à Acquigny (27400), cette maison de 7 pièces de 160 m² et de 950 m² de terrain.
Il s'agit d'une maison de 2 niveaux. Son intérieur inclut quatre chambres, une cuisine et deux salles de bains. Cette maison est neuve.
L'École Primaire Arc En Ciel est implantée à moins de 10 minutes à pied. Côté transports en commun, il y a la gare Saint-Pierre-du-Vauvray à moins de 10 minutes en voiture. Les autoroutes A154 et A13 et la nationale N154 sont accessibles à moins de 5 km. On trouve deux tennis, deux boulangeries, un commerce, un bureau de poste, une boucherie-charcuterie et une supérette à proximité du bien.
Elle est à vendre pour la somme de 412 000 €.
Contactez Kévin XAVIER ALVES (tél : 06-58-91-13-87) pour plus d'informations sur la maison, sur les démarches à suivre ou sur les modalités de vente. Maisons Balency Boos est là pour vous accompagner à toutes les étapes de votre projet.

Annonce proposée par un Agent Commercial Partenaire.

Mentions légales

Terrain proposé par un partenaire foncier selon disponibilités et autorisation de publicité au prix de 88 000 €. Hors droit d'enregistrement et frais de notaire. Terrain + Maison proposés au prix de 324 000 € (Hors branchements et raccordements, papiers peints, peintures, revêtement de sol dans les chambres. Tarif modifiable sans préavis). Etiquette énergie : A. Différents modèles disponibles pour ce terrain. Assurances et garanties du constructeur (RC professionnelle, décennale, dommage ouvrage, garantie de remboursement de l'acompte, livraison à prix et délai convenu) : https://www.maisons-balency.fr/informations-legales/. HEXAOM Services est enregistré auprès de l'ORIAS en tant que Courtier en financement, Niveau 1, sous le numéro 14001345.

Contactez l'agence de Boos

02 35 80 66 66

    * Champs obligatoires

    Vos informations sont traitées par HEXAOM et transmises à un conseiller commercial qui vous contactera afin de répondre à votre demande. Les plans et images présentés sur notre site sont la propriété d’HEXAOM et ne peuvent pas être reproduits sans son accord. Pour retrouver notre politique de protection des données personnelles et exercer vos droits conformément à la « loi informatique et liberté » cliquez-ici.