Maison neuve à
Acquigny (27400) Référence : FG2401977_2

Prix du projet : Maison avec Terrain

prix 409 602 €

  • 7 pièces
  • 5 chambres
  • Surface maison 170 m2

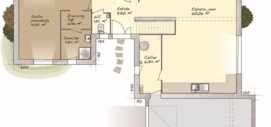
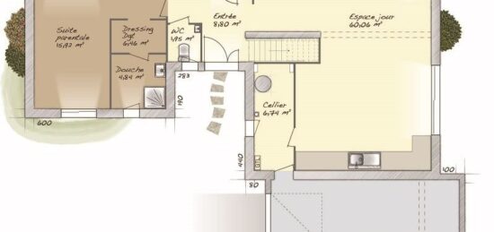
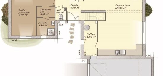
Acquigny : maison de 7 pièces (170 m²) en vente
IDÉALEMENT SITUÉE - MAISON 7 PIÈCES NEUVE
En vente : localisée à deux pas d'Évreux, nous sommes ravis de vous proposer, idéalement située dans Acquigny (27400), cette maison de 7 pièces de plain-pied de 170 m² et de 950 m² de terrain. Son intérieur inclut cinq chambres dont une suite parentale , une cuisine ouverte sur un bel espace de vie, d'un cellier et trois salles de bains.
La maison est neuve.

Elle est proposée à l'achat pour 409 602 €.
N'hésitez pas à prendre contact avec notre agence (Fanny GATINAULT : 06-34-03-24-37) pour toute information sur la maison, sur les démarches à suivre ou sur les modalités de vente. Maisons Balency Louviers vous accompagne dans tous vos projets immobiliers et dans toutes vos démarches.

Annonce proposée par un Agent Commercial Partenaire.

Mentions légales

Terrain proposé par un partenaire foncier selon disponibilités et autorisation de publicité au prix de 80 000 €. Hors droit d'enregistrement et frais de notaire. Terrain + Maison proposés au prix de 409 602 € (Hors branchements et raccordements, papiers peints, peintures, revêtement de sol dans les chambres. Tarif modifiable sans préavis). Etiquette énergie : A. Différents modèles disponibles pour ce terrain. Assurances et garanties du constructeur (RC professionnelle, décennale, dommage ouvrage, garantie de remboursement de l'acompte, livraison à prix et délai convenu) : https://www.maisons-balency.fr/informations-legales/. HEXAOM Services est enregistré auprès de l'ORIAS en tant que Courtier en financement, Niveau 1, sous le numéro 14001345.

Contactez l'agence de Louviers

02 32 51 43 53

    * Champs obligatoires

    Vos informations sont traitées par HEXAOM et transmises à un conseiller commercial qui vous contactera afin de répondre à votre demande. Les plans et images présentés sur notre site sont la propriété d’HEXAOM et ne peuvent pas être reproduits sans son accord. Pour retrouver notre politique de protection des données personnelles et exercer vos droits conformément à la « loi informatique et liberté » cliquez-ici.