Maison neuve à
Acquigny (27400) Référence : SH2458960_2

Prix du projet : Maison avec Terrain

prix 305 000 €

  • 6 pièces
  • 4 chambres
  • Surface maison 117 m2

VENTE d'une maison de 6 pièces (117 m²) à Acquigny
QUARTIER RECHERCHÉ - MAISON 6 PIÈCES NEUVE
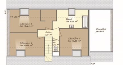
En vente à deux pas d'Évreux, nous sommes ravis de vous proposer cette maison de 6 pièces de plain-pied de 117 m², située dans un quartier prisé d'Acquigny (27400). Elle inclut quatre chambres, une cuisine et deux salles de bains.
Le terrain de la propriété est de 690 m².
La maison est neuve.
La maison se trouve dans un secteur recherché. L'École Primaire Arc En Ciel est implantée à moins de 10 minutes à pied. Niveau transports en commun, on trouve la gare Saint-Pierre-du-Vauvray à moins de 10 minutes en voiture. Les autoroutes A154 et A13 et la nationale N154 sont accessibles à moins de 5 km. Il y a deux tennis, un commerce, un bureau de poste, une boucherie-charcuterie et une supérette à proximité du bien.
Son prix de vente est de 305 000 €.
Contactez Sébastien HOTTE (06-15-58-21-40) pour tout renseignement sur la maison et sur les modalités de vente.

Annonce proposée par un Agent Commercial Partenaire.

Mentions légales

Terrain proposé par un partenaire foncier selon disponibilités et autorisation de publicité au prix de 86 000 €. Hors droit d'enregistrement et frais de notaire. Terrain + Maison proposés au prix de 305 000 € (Hors branchements et raccordements, papiers peints, peintures, revêtement de sol dans les chambres. Tarif modifiable sans préavis). Etiquette énergie : A. Différents modèles disponibles pour ce terrain. Assurances et garanties du constructeur (RC professionnelle, décennale, dommage ouvrage, garantie de remboursement de l'acompte, livraison à prix et délai convenu) : https://www.maisons-balency.fr/informations-legales/. HEXAOM Services est enregistré auprès de l'ORIAS en tant que Courtier en financement, Niveau 1, sous le numéro 14001345.

Contactez l'agence de Louviers

02 32 51 43 53

    * Champs obligatoires

    Vos informations sont traitées par HEXAOM et transmises à un conseiller commercial qui vous contactera afin de répondre à votre demande. Les plans et images présentés sur notre site sont la propriété d’HEXAOM et ne peuvent pas être reproduits sans son accord. Pour retrouver notre politique de protection des données personnelles et exercer vos droits conformément à la « loi informatique et liberté » cliquez-ici.