Maison neuve à
Aigues-Vives (30670) Référence : JFM2328306_1

Prix du projet : Maison avec Terrain

prix 430 875 €

  • 5 pièces
  • 4 chambres
  • Surface maison 110 m2

Aigues-Vives : maison T5 (110 m²) à vendre
IDÉALEMENT SITUÉE - MAISON 5 PIÈCES NEUVE
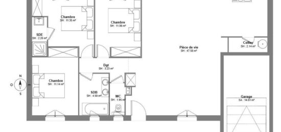
À 22 km de la mer Méditerranée et à deux pas de Montpellier, ayez le coup de coeur pour à vendre, idéalement située dans Aigues-Vives (30670), cette maison de 5 pièces de 110 m² et de 525 m² de terrain. Son intérieur offre quatre chambres, une cuisine et une salle de bains.
C'est une maison de 2 niveaux. Elle est neuve.
Cette maison se trouve dans un secteur attractif. Il y a l'École Élémentaire Aqua Viva et l'École Maternelle Eau Vive à moins de 10 minutes à pied et une crèche. Côté transports en commun, on trouve huit gares à moins de 10 minutes en voiture. L'autoroute A9 est accessible à 2 km. Il y a un tennis, quatre commerces, quatre boulangeries, un bureau de poste et deux boucheries-charcuteries dans les environs.
Son prix de vente est de 430 875 €.
Prenez contact avec Jean-François MARTERER (tél : 06-62-33-13-00) pour tout renseignement sur la maison.

Annonce proposée par un Agent Commercial Partenaire.

Mentions légales

Terrain proposé par un partenaire foncier selon disponibilités et autorisation de publicité au prix de 225 000 €. Hors droit d'enregistrement et frais de notaire. Maison proposée, avec un contrat de construction de maison individuelle, dans le cadre de la loi du 19/12/1990, au prix de 205 875 € (Hors branchements et raccordements, papiers peints, peintures, revêtement de sol dans les chambres, qui sont chiffrés dans les travaux qui restent à charge du client. Tarif modifiable sans préavis). Étiquette énergie : A. Différents modèles disponibles pour ce terrain. Assurances et garanties du constructeur comprises (RC professionnelle, décennale, dommage ouvrage).

Contactez l'agence de Uzès

04 66 57 25 45

    * Champs obligatoires

    Vos informations sont traitées par HEXAOM et transmises à un conseiller commercial qui vous contactera afin de répondre à votre demande. Les plans et images présentés sur notre site sont la propriété d’HEXAOM et ne peuvent pas être reproduits sans son accord. Pour retrouver notre politique de protection des données personnelles et exercer vos droits conformément à la « loi informatique et liberté » cliquez-ici.