Maison neuve à
Alès (30100) Référence : PP2318721_1

Prix du projet : Maison avec Terrain

prix 322 800 €

  • 5 pièces
  • 3 chambres
  • Surface maison 110 m2

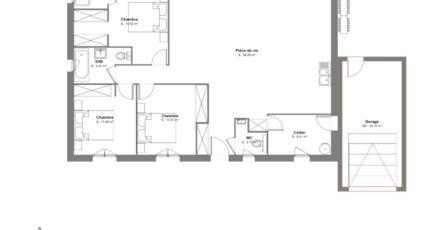
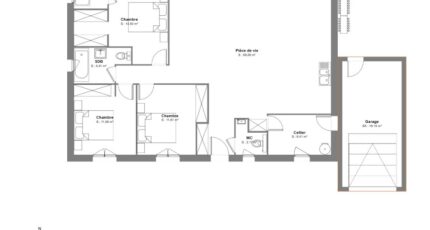
VENTE : maison de 5 pièces (110 m²) à Alès
IDÉALEMENT SITUÉE - MAISON 5 PIÈCES NEUVE
Nous sommes ravis de vous présenter cette maison de 5 pièces de plain-pied de 110 m² idéalement située dans Alès (30100).
Elle est composée de trois chambres, d'une cuisine et de deux salles de bains. La maison est neuve.
Le terrain du bien s'étend sur 1 101 m².
Cette maison se situe dans un quartier attractif. Des écoles du primaire et du secondaire se trouvent à moins de 10 minutes à pied, tout comme trois structures d'accueil pour la petite enfance. Côté transports en commun, il y a la gare Alès juste à côté. La nationale N106 est accessible à 3 km. On trouve une bibliothèque, un bassin de natation, un tennis, trois supermarchés, des commerces, des boulangeries, une poissonnerie et des épiceries à quelques minutes de la maison.
Elle est à vendre pour la somme de 322 800 €.
Contactez Pascale PIEL (O6-O1-26-64-83) pour toute information sur la maison, sur les démarches à suivre ou sur les modalités de vente.

Mentions légales

Terrain proposé par un partenaire foncier selon disponibilités et autorisation de publicité au prix de 118 900 €. Hors droit d'enregistrement et frais de notaire. Terrain + Maison proposés au prix de 322 800 € (Hors branchements et raccordements, papiers peints, peintures, revêtement de sol dans les chambres. Tarif modifiable sans préavis). Etiquette énergie : A. Différents modèles disponibles pour ce terrain. Assurances et garanties du constructeur (RC professionnelle, décennale, dommage ouvrage, garantie de remboursement de l'acompte, livraison à prix et délai convenu) : https://www.maisons-balency.fr/informations-legales/. HEXAOM Services est enregistré auprès de l'ORIAS en tant que Courtier en financement, Niveau 1, sous le numéro 14001345.

Contactez l'agence de Uzès

04 66 57 25 45

    * Champs obligatoires

    Vos informations sont traitées par HEXAOM et transmises à un conseiller commercial qui vous contactera afin de répondre à votre demande. Les plans et images présentés sur notre site sont la propriété d’HEXAOM et ne peuvent pas être reproduits sans son accord. Pour retrouver notre politique de protection des données personnelles et exercer vos droits conformément à la « loi informatique et liberté » cliquez-ici.