Maison neuve à
Alignan-du-Vent (34290) Référence : AB2453588_1

Prix du projet : Maison avec Terrain

prix 190 000 €

  • 2 pièces
  • 1 chambre
  • Surface maison 50 m2

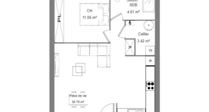
PROJET DE CONSTRUCTION - Maison F2 (50 m²) à Alignan-du-Vent
EMPLACEMENT PRIVILÉGIÉ - MAISON 2 PIÈCES
À 22 km de la mer Méditerranée et à quelques kilomètres de Béziers, Maisons Balency Pézenas vous propose cette maison de 2 pièces de plain-pied de 50 m² bénéficiant d'un emplacement privilégié dans Alignan-du-Vent (34290).
Conçue de plain-pied, elle inclut une chambre, une cuisine, un cellier et une salle de bains.
(Carrelage inclus dans toutes les pièces / Raccordements inclus).
Le terrain du bien est de 370 m².
Le bien se situe dans un secteur attractif. On y trouve une école primaire. Niveau transports, il y a la gare Magalas à moins de 10 minutes en voiture. L'autoroute A75 est accessible à 6 km. On trouve une bibliothèque, un tennis, un bassin de natation, trois boulangeries, deux boucheries-charcuteries et un bureau de poste dans les environs.
Il est proposé à l'achat pour 190 000 €.
Pour plus d'information contacter Anthony BALLESTER 06 27 21 51 55 Maisons Balency Pézenas pour échanger sur votre projet et réaliser une étude gratuite. (Plan personnalisable). Tous nos ouvrages sont réalisés sur-mesure en fonction de vos attentes et de nos échanges avec vous ainsi que dans le respect de la règlementation RE 2020. Ce projet comporte les garanties suivantes: Contrat de construction CCMI. Dommage/Ouvrage. RC Garantie décennale. Parfaite achèvement. Etude de sol G2. Prix et délais convenu. Garantie de livraison. Garantie financière Pour votre tranquillité nous nous occupons de toutes les formalités administratives.

Mentions légales

Terrain proposé par un partenaire foncier selon disponibilités et autorisation de publicité au prix de 90 000 €. Hors droit d'enregistrement et frais de notaire. Terrain + Maison proposés au prix de 190 000 € (Hors branchements et raccordements, papiers peints, peintures, revêtement de sol dans les chambres. Tarif modifiable sans préavis). Etiquette énergie : A. Différents modèles disponibles pour ce terrain. Assurances et garanties du constructeur (RC professionnelle, décennale, dommage ouvrage, garantie de remboursement de l'acompte, livraison à prix et délai convenu) : https://www.maisons-balency.fr/informations-legales/. HEXAOM Services est enregistré auprès de l'ORIAS en tant que Courtier en financement, Niveau 1, sous le numéro 14001345.

Contactez l'agence de Pézenas

04 99 43 05 21

    * Champs obligatoires

    Vos informations sont traitées par HEXAOM et transmises à un conseiller commercial qui vous contactera afin de répondre à votre demande. Les plans et images présentés sur notre site sont la propriété d’HEXAOM et ne peuvent pas être reproduits sans son accord. Pour retrouver notre politique de protection des données personnelles et exercer vos droits conformément à la « loi informatique et liberté » cliquez-ici.