Maison neuve à
Andé (27430) Référence : SH2461545-0_1

Prix du projet : Maison avec Terrain

prix 285 000 €

  • 6 pièces
  • 4 chambres
  • Surface maison 117 m2

VENTE d'une maison de 6 pièces (117 m²) à Andé
EMPLACEMENT PRIVILÉGIÉ - MAISON 6 PIÈCES NEUVE
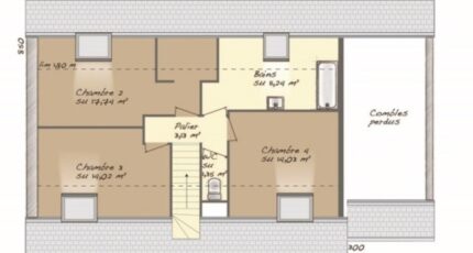
À vendre à 26 km de Rouen, votre agence Maisons Balency Louviers est ravie de vous présenter, bénéficiant d'un emplacement d'exception dans Andé (27430), cette maison de 6 pièces de plain-pied de 117 m² et de 956 m² de terrain. Elle est composée de quatre chambres, d'une cuisine et de deux salles de bains.
La maison est neuve.
La maison se situe dans un quartier prisé. Une école primaire y est implantée. Niveau transports, il y a deux gares (Saint-Pierre-du-Vauvray et Val-de-Reuil) à moins de 10 minutes en voiture. Les autoroutes A13 et A154 et la nationale N154 sont accessibles à moins de 8 km. On trouve un tennis et deux commerces à proximité.
Elle est proposée à l'achat pour 285 000 €.
Prenez contact avec notre constructeur (HOTTE Sébastien : 06-15-58-21-40) pour toute question sur la propriété, sur les démarches à suivre ou sur les modalités de vente.

Annonce proposée par un Agent Commercial Partenaire.

Mentions légales

Terrain proposé par un partenaire foncier selon disponibilités et autorisation de publicité au prix de 65 000 €. Hors droit d'enregistrement et frais de notaire. Terrain + Maison proposés au prix de 285 000 € (Hors branchements et raccordements, papiers peints, peintures, revêtement de sol dans les chambres. Tarif modifiable sans préavis). Etiquette énergie : A. Différents modèles disponibles pour ce terrain. Assurances et garanties du constructeur (RC professionnelle, décennale, dommage ouvrage, garantie de remboursement de l'acompte, livraison à prix et délai convenu) : https://www.maisons-balency.fr/informations-legales/. HEXAOM Services est enregistré auprès de l'ORIAS en tant que Courtier en financement, Niveau 1, sous le numéro 14001345.

Contactez l'agence de Louviers

02 32 51 43 53

    * Champs obligatoires

    Vos informations sont traitées par HEXAOM et transmises à un conseiller commercial qui vous contactera afin de répondre à votre demande. Les plans et images présentés sur notre site sont la propriété d’HEXAOM et ne peuvent pas être reproduits sans son accord. Pour retrouver notre politique de protection des données personnelles et exercer vos droits conformément à la « loi informatique et liberté » cliquez-ici.