Maison neuve à
Andilly
(95580) Référence :
MU2277597_4
Prix du projet : Maison avec Terrain
prix 380 000 €
- 5 pièces
- 3 chambres
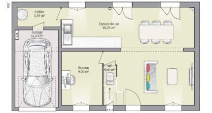
- Surface maison 90 m2
Maison de 5 pièces (90 m²) à vendre à Andilly
IDÉALEMENT SITUÉE - MAISON 5 PIÈCES NEUVE
À quelques minutes de la gare de Champ de Courses d'Enghien (Paris à 15 min par le Transilien H), notre agence Maisons Balency Baillet-en-France est ravie de vous présenter cette maison de 5 pièces de 90 m² à vendre idéalement située dans Andilly (95580).
Cette maison possède 2 niveaux. Elle dispose de trois chambres, d'une cuisine et d'une salle de bains. La maison est neuve.
Le terrain de la propriété est de 668 m².
La propriété est située dans un secteur convoité. On trouve l'École Élémentaire Sylvain Lévi et l'École Maternelle Charles Perrault à moins de 10 minutes à pied. Niveau transports en commun, il y a les lignes C et D du RER ainsi que 44 gares à moins de 10 minutes en voiture. Il y a deux bibliothèques, un tennis, deux commerces, trois boulangeries, un supermarché, une boucherie-charcuterie et un bureau de poste dans les environs.
Elle est proposée à l'achat pour 380 000 €.
N'hésitez pas à prendre contact avec Mylann URBANSKY (06-23-32-28-23) pour toute question sur la maison ou sur les démarches à suivre. Maisons Balency Baillet-en-France vous accompagne dans tous vos projets immobiliers et dans toutes vos démarches.
Annonce proposée par un Agent Commercial Partenaire.
Mentions légales
Terrain proposé par un partenaire foncier selon disponibilités et autorisation de publicité au prix de 220 000 €. Hors droit d'enregistrement et frais de notaire. Maison proposée, avec un contrat de construction de maison individuelle, dans le cadre de la loi du 19/12/1990, au prix de 160 000 € (Hors branchements et raccordements, papiers peints, peintures, revêtement de sol dans les chambres, qui sont chiffrés dans les travaux qui restent à charge du client. Tarif modifiable sans préavis). Étiquette énergie : A. Différents modèles disponibles pour ce terrain. Assurances et garanties du constructeur comprises (RC professionnelle, décennale, dommage ouvrage).Agence Maisons Balency de Baillet-en-France (95560)
- Téléphone :
- 01 34 46 05 23
- Adressse :
- 81 rue de Paris
95560 Baillet-en-France, France
