Maison neuve à
Andilly
(95580) Référence :
CM2334088_1
Prix du projet : Maison avec Terrain
prix 519 000 €
- 6 pièces
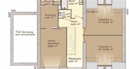
- 4 chambres
- Surface maison 139 m2
Maison T6 (139 m²) en vente à Andilly
MAISON 6 PIÈCES NEUVE - PROCHE DE PARIS
À côté de la gare de Champ de Courses d'Enghien (Paris à 15 min avec le Transilien H), en vente à Andilly (95580), venez découvrir cette maison de 6 pièces de 139 m². Elle propose quatre chambres, une cuisine et deux salles de bains.
Le terrain du bien s'étend sur 670 m².
Cette maison compte 2 niveaux. Elle est neuve.
On trouve l'École Élémentaire Sylvain Lévi et l'École Maternelle Charles Perrault à moins de 10 minutes à pied. Niveau transports en commun, il y a les lignes de RER C et D ainsi que 44 gares à moins de 10 minutes en voiture. On trouve deux bibliothèques, un tennis, deux commerces, trois boulangeries, un supermarché, un bureau de poste et des épiceries à proximité de la maison.
Elle est à vendre pour la somme de 519 000 €.
Contactez notre agence (MONTANIER Christophe : 06-10-23-51-22) pour toute information sur cette maison ou sur les démarches à suivre. Maisons Balency Saint-Maur-des-Fossés est là pour vous accompagner dans tous vos projets immobiliers.
Annonce proposée par un Agent Commercial Partenaire.
Mentions légales
Terrain proposé par un partenaire foncier selon disponibilités et autorisation de publicité au prix de 209 000 €. Hors droit d'enregistrement et frais de notaire. Terrain + Maison proposés au prix de 310 000 € (Hors branchements et raccordements, papiers peints, peintures, revêtement de sol dans les chambres. Tarif modifiable sans préavis). Etiquette énergie : A. Différents modèles disponibles pour ce terrain. Assurances et garanties du constructeur (RC professionnelle, décennale, dommage ouvrage, garantie de remboursement de l'acompte, livraison à prix et délai convenu) : https://www.maisons-balency.fr/informations-legales/. HEXAOM Services est enregistré auprès de l'ORIAS en tant que Courtier en financement, Niveau 1, sous le numéro 14001345.Agence Maisons Balency de Saint-Maur-des-Fossés (94100)
- Téléphone :
- 01 87 36 85 37
- Adressse :
- 12 avenue de la république
94100 Saint-Maur-des-Fossés, France
