Maison neuve à
Andrésy (78570) Référence : DD2328060_1

Prix du projet : Maison avec Terrain

prix 576 000 €

  • 7 pièces
  • 4 chambres
  • Surface maison 160 m2

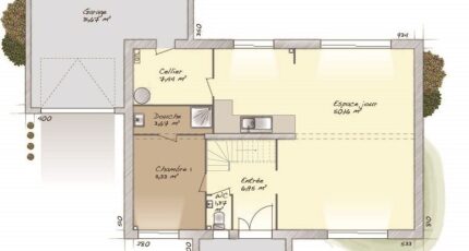
VENTE d'une maison F7 (160 m²) à Andrésy
MAISON 7 PIÈCES NEUVE - PROCHE DE PARIS
À quelques minutes de la gare (Paris à 30 min par le Transilien J), en vente à Andrésy (78570), venez découvrir cette maison de 7 pièces de 160 m² et de 1 054 m² de terrain.
C'est une maison de 2 niveaux. Elle propose quatre chambres, une cuisine et deux salles de bains. La maison est neuve.
Il y a l'École Maternelle Saint-Exupéry et l'École Élémentaire Antoine de Saint-Exupéry à moins de 10 minutes à pied. Niveau transports en commun, on trouve la gare Andrésy dans un rayon de 1 km. Il y a une bibliothèque, un tennis, quatre commerces, deux boulangeries, un bureau de poste et une épicerie à proximité. 2 marchés animent les environs.
Son prix de vente est de 576 000 €.
Contactez notre agence (DUCOS Denis : 06-80-06-50-40) pour toute question sur la maison, sur les modalités de vente ou sur les démarches à suivre.

Annonce proposée par un Agent Commercial Partenaire.

Mentions légales

Terrain proposé par un partenaire foncier selon disponibilités et autorisation de publicité au prix de 201 000 €. Hors droit d'enregistrement et frais de notaire. Maison proposée, avec un contrat de construction de maison individuelle, dans le cadre de la loi du 19/12/1990, au prix de 375 000 € (Hors branchements et raccordements, papiers peints, peintures, revêtement de sol dans les chambres, qui sont chiffrés dans les travaux qui restent à charge du client. Tarif modifiable sans préavis). Étiquette énergie : A. Différents modèles disponibles pour ce terrain. Assurances et garanties du constructeur comprises (RC professionnelle, décennale, dommage ouvrage).

Contactez l'agence de Pontoise

01 39 91 70 10

    * Champs obligatoires

    Vos informations sont traitées par HEXAOM et transmises à un conseiller commercial qui vous contactera afin de répondre à votre demande. Les plans et images présentés sur notre site sont la propriété d’HEXAOM et ne peuvent pas être reproduits sans son accord. Pour retrouver notre politique de protection des données personnelles et exercer vos droits conformément à la « loi informatique et liberté » cliquez-ici.