Maison neuve à
Anet (28260) Référence : SH2267558_2

Prix du projet : Maison avec Terrain

prix 359 000 €

  • 8 pièces
  • 5 chambres
  • Surface maison 145 m2

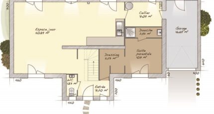
VENTE : maison F8 (145 m²) à Anet
IDÉALEMENT SITUÉE - MAISON 8 PIÈCES NEUVE
À quelques kilomètres d'Évreux, nous sommes heureux de vous proposer en vente, idéalement située dans Anet (28260), cette maison de 8 pièces de 145 m².
Cette maison compte 2 niveaux. Elle est composée de cinq chambres, d'une cuisine et de trois salles de bains. La maison est neuve.
Le terrain du bien s'étend sur 1 373 m².
Cette maison est située dans un secteur prisé. Des écoles du primaire et du secondaire se trouvent à moins de 10 minutes à pied. Niveau transports en commun, il y a la gare Bueil à moins de 10 minutes en voiture. L'autoroute A13 et les nationales N12, N154 et N13 sont accessibles à moins de 20 km. On trouve une bibliothèque, des commerces, deux boulangeries, une boucherie-charcuterie, une épicerie et une supérette dans les environs.
Elle est proposée à l'achat pour 359 000 €.
N'hésitez pas à prendre contact avec notre agence (Sébastien HOTTE : 06-15-58-21-40) pour toute information sur la maison.

Annonce proposée par un Agent Commercial Partenaire.

Mentions légales

Terrain proposé par un partenaire foncier selon disponibilités et autorisation de publicité au prix de 80 000 €. Hors droit d'enregistrement et frais de notaire. Maison proposée, avec un contrat de construction de maison individuelle, dans le cadre de la loi du 19/12/1990, au prix de 279 000 € (Hors branchements et raccordements, papiers peints, peintures, revêtement de sol dans les chambres, qui sont chiffrés dans les travaux qui restent à charge du client. Tarif modifiable sans préavis). Étiquette énergie : A. Différents modèles disponibles pour ce terrain. Assurances et garanties du constructeur comprises (RC professionnelle, décennale, dommage ouvrage).

Contactez l'agence de Louviers

02 32 51 43 53

    * Champs obligatoires

    Vos informations sont traitées par HEXAOM et transmises à un conseiller commercial qui vous contactera afin de répondre à votre demande. Les plans et images présentés sur notre site sont la propriété d’HEXAOM et ne peuvent pas être reproduits sans son accord. Pour retrouver notre politique de protection des données personnelles et exercer vos droits conformément à la « loi informatique et liberté » cliquez-ici.