Maison neuve à
Antony
(92160) Référence :
CM2334107_1
Prix du projet : Maison avec Terrain
prix 699 000 €
- 6 pièces
- 4 chambres
- Surface maison 98 m2
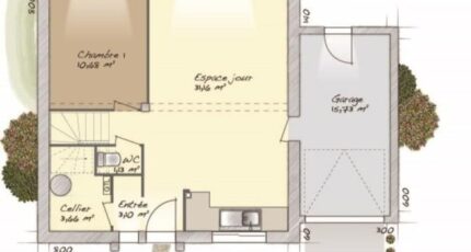
VENTE : maison T6 (98 m²) à Antony
MAISON 6 PIÈCES NEUVE
À 495 m du RER B (10 min de Paris), notre agence Maisons Balency Saint-Maur-des-Fossés est ravie de vous présenter en vente à Antony (92160), cette maison de 6 pièces de 98 m² et de 465 m² de terrain. Elle est composée de quatre chambres, d'une cuisine et d'une salle de bains.
Cette maison comporte 2 niveaux. Elle est neuve.
On trouve des écoles du primaire et du secondaire à moins de 10 minutes à pied, tout comme huit structures d'accueil pour les enfants en bas âge. Niveau transports en commun, il y a la ligne de RER B (Antony) à quelques pas de la maison. On trouve une bibliothèque, un bassin de natation, des commerces, des boulangeries, trois supermarchés, une poissonnerie et des épiceries dans les environs.
Elle est proposée à l'achat pour 699 000 €.
N'hésitez pas à prendre contact avec Christophe MONTANIER (06-10-23-51-22) pour obtenir de plus amples renseignements sur cette maison.
Annonce proposée par un Agent Commercial Partenaire.
Mentions légales
Terrain proposé par un partenaire foncier selon disponibilités et autorisation de publicité au prix de 439 000 €. Hors droit d'enregistrement et frais de notaire. Terrain + Maison proposés au prix de 260 000 € (Hors branchements et raccordements, papiers peints, peintures, revêtement de sol dans les chambres. Tarif modifiable sans préavis). Etiquette énergie : A. Différents modèles disponibles pour ce terrain. Assurances et garanties du constructeur (RC professionnelle, décennale, dommage ouvrage, garantie de remboursement de l'acompte, livraison à prix et délai convenu) : https://www.maisons-balency.fr/informations-legales/. HEXAOM Services est enregistré auprès de l'ORIAS en tant que Courtier en financement, Niveau 1, sous le numéro 14001345.Agence Maisons Balency de Saint-Maur-des-Fossés (94100)
- Téléphone :
- 01 87 36 85 37
- Adressse :
- 12 avenue de la république
94100 Saint-Maur-des-Fossés, France
