Maison neuve à
Appeville-Annebault (27290) Référence : KB2353728_2

Prix du projet : Maison avec Terrain

prix 205 000 €

  • 6 pièces
  • 4 chambres
  • Surface maison 89 m2

Maison de 6 pièces (89 m²) en vente à Appeville-Annebault
IDÉALEMENT SITUÉE - MAISON 6 PIÈCES NEUVE
À vendre à 26 km de la Manche, votre agence Maisons Balency Boos est heureuse de vous présenter, idéalement située dans Appeville-Annebault (27290), cette maison de 6 pièces de 89 m² et de 900 m² de terrain.
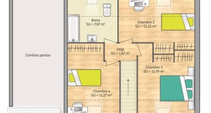
Cette maison possède 2 niveaux. Son intérieur compte quatre chambres, une cuisine et une salle de bains. La maison est neuve.
Cette maison est située dans un secteur recherché. On trouve l'École Primaire les Chataigniers, le Collège Marcel Marceron et le Collège le Roumois à moins de 10 minutes en voiture et deux crèches à moins de 10 minutes à pied. Côté transports, il y a la gare Glos-Montfort à moins de 10 minutes en voiture. Les autoroutes A13 et A131 sont accessibles à moins de 9 km. On trouve des tennis, une bibliothèque, deux bassins de natation, des commerces, des boulangeries, des supermarchés, des épiceries et une supérette dans les environs. Enfin, le marché Place Leclerc anime le quartier tous les mercredis matin.
Elle est à vendre pour la somme de 205 000 €.
Contactez Aurélien LEOVANT (tél : 02-35-80-66-66) pour tout renseignement sur la maison ou sur les démarches à suivre.

Annonce proposée par un Agent Commercial Partenaire.

Mentions légales

Terrain proposé par un partenaire foncier selon disponibilités et autorisation de publicité au prix de 51 000 €. Hors droit d'enregistrement et frais de notaire. Maison proposée, avec un contrat de construction de maison individuelle, dans le cadre de la loi du 19/12/1990, au prix de 154 000 € (Hors branchements et raccordements, papiers peints, peintures, revêtement de sol dans les chambres, qui sont chiffrés dans les travaux qui restent à charge du client. Tarif modifiable sans préavis). Étiquette énergie : A. Différents modèles disponibles pour ce terrain. Assurances et garanties du constructeur comprises (RC professionnelle, décennale, dommage ouvrage).

Contactez l'agence de Boos

02 35 80 66 66

    * Champs obligatoires

    Vos informations sont traitées par HEXAOM et transmises à un conseiller commercial qui vous contactera afin de répondre à votre demande. Les plans et images présentés sur notre site sont la propriété d’HEXAOM et ne peuvent pas être reproduits sans son accord. Pour retrouver notre politique de protection des données personnelles et exercer vos droits conformément à la « loi informatique et liberté » cliquez-ici.