Maison neuve à
Appeville-Annebault (27290) Référence : FG2416610_1

Prix du projet : Maison avec Terrain

prix 265 525 €

  • 6 pièces
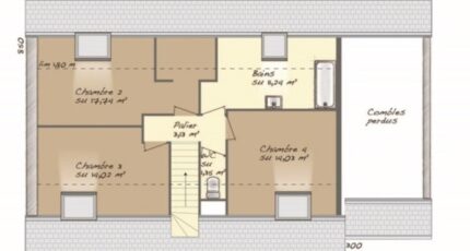
  • 4 chambres
  • Surface maison 117 m2

Appeville-Annebault : maison de 6 pièces (117 m²) à vendre
EMPLACEMENT PRIVILÉGIÉ - MAISON 6 PIÈCES NEUVE bénéficiant d'un emplacement d'exception dans Appeville-Annebault (27290), nous sommes ravis de vous proposer cette maison de 6 pièces de 117 m². Son intérieur propose quatre chambres dont une suite parentale, une cuisine ouverte sur l'espace de vie, d'un cellier donnant sur le garage et deux salles de bains.
Le terrain de la propriété est de 922 m².
La maison est neuve.
Cette maison est située dans un quartier convoité.

Elle est à vendre pour la somme de 265 525 €.
N'hésitez pas à prendre contact avec Fanny GATINAULT (06-34-03-24-37) pour tout renseignement sur la maison. Maisons Balency Louviers est là pour vous accompagner dans toutes vos démarches.

Annonce proposée par un Agent Commercial Partenaire.

Mentions légales

Terrain proposé par un partenaire foncier selon disponibilités et autorisation de publicité au prix de 49 000 €. Hors droit d'enregistrement et frais de notaire. Terrain + Maison proposés au prix de 265 525 € (Hors branchements et raccordements, papiers peints, peintures, revêtement de sol dans les chambres. Tarif modifiable sans préavis). Etiquette énergie : A. Différents modèles disponibles pour ce terrain. Assurances et garanties du constructeur (RC professionnelle, décennale, dommage ouvrage, garantie de remboursement de l'acompte, livraison à prix et délai convenu) : https://www.maisons-balency.fr/informations-legales/. HEXAOM Services est enregistré auprès de l'ORIAS en tant que Courtier en financement, Niveau 1, sous le numéro 14001345.

Contactez l'agence de Louviers

02 32 51 43 53

    * Champs obligatoires

    Vos informations sont traitées par HEXAOM et transmises à un conseiller commercial qui vous contactera afin de répondre à votre demande. Les plans et images présentés sur notre site sont la propriété d’HEXAOM et ne peuvent pas être reproduits sans son accord. Pour retrouver notre politique de protection des données personnelles et exercer vos droits conformément à la « loi informatique et liberté » cliquez-ici.