Maison neuve à
Arbonne-la-Forêt
(77630) Référence :
AM2352823_2
Prix du projet : Maison avec Terrain
prix 590 245 €
- 6 pièces
- 5 chambres
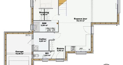
- Surface maison 114 m2
PROJET TERRAIN + MAISON + NOTAIRE + VIABILISATION = 590 245€
En vente : localisée à deux pas d'Évry-Courcouronnes, découvrez cette maison de 6 pièces de 114 m² et de 3 456 m² de terrain idéalement située dans Arbonne-la-Forêt (77630). Elle est composée de cinq chambres, d'une cuisine et de deux salles de bains.
C'est une maison de 2 niveaux. Elle est neuve.
La maison se situe dans un secteur prisé. L'École Élémentaire Louis-Antoine de Saint Just et l'École Maternelle Kergomard sont implantées à moins de 10 minutes à pied.
Son prix de vente est de 590 245 €.
Prenez contact avec Arnaud MOINE (06-40-48-40-55) pour plus de renseignements sur la maison ou sur les modalités de vente. Maisons Balency Moret-Loing-et-Orvanne vous accompagne à toutes les étapes de l'achat et dans tous vos projets immobiliers.
Annonce proposée par un Agent Commercial Partenaire.
Mentions légales
Terrain proposé par un partenaire foncier selon disponibilités et autorisation de publicité au prix de 238 700 €. Hors droit d'enregistrement et frais de notaire. Terrain + Maison proposés au prix de 351 545 € (Hors branchements et raccordements, papiers peints, peintures, revêtement de sol dans les chambres. Tarif modifiable sans préavis). Etiquette énergie : A. Différents modèles disponibles pour ce terrain. Assurances et garanties du constructeur (RC professionnelle, décennale, dommage ouvrage, garantie de remboursement de l'acompte, livraison à prix et délai convenu) : https://www.maisons-balency.fr/informations-legales/. HEXAOM Services est enregistré auprès de l'ORIAS en tant que Courtier en financement, Niveau 1, sous le numéro 14001345.Agence Maisons Balency de Moret-sur-Loing (77250)
- Téléphone :
- 09 78 81 26 91
- Adressse :
- 96 avenue de Fontainebleau
77250 Moret-sur-Loing, France
