Maison neuve à
Argenteuil
(95100) Référence :
TW2455039_1
Prix du projet : Maison avec Terrain
prix 450 000 €
- 6 pièces
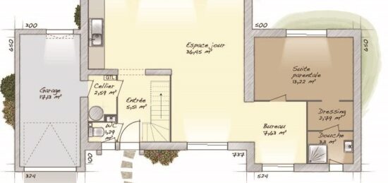
- 5 chambres
- Surface maison 120 m2
VENTE : maison de 6 pièces (120 m²) à Argenteuil
EMPLACEMENT PRIVILÉGIÉ - MAISON 6 PIÈCES NEUVE
À deux pas de la gare, nous sommes heureux de vous présenter cette maison de 6 pièces de 120 m² bénéficiant d'un emplacement d'exception dans Argenteuil (95100). Elle inclut cinq chambres, une cuisine et deux salles de bains.
Le terrain du bien s'étend sur 400 m².
Cette maison possède 2 niveaux. Elle est neuve.
La maison se situe dans un quartier prisé. Il y a tous les types d'écoles à moins de 10 minutes à pied, tout comme trois structures d'accueil pour les enfants en bas âge. Niveau transports, on trouve la gare Val d'Argenteuil juste à côté, mettant Paris à 15 min du bien en transilien. Il y a une bibliothèque, des commerces, des boulangeries, trois supermarchés, des boucheries-charcuteries et un bureau de poste à proximité du logement.
Elle est à vendre pour la somme de 450 000 €.
Contactez notre agence (Théo WIECZOREK : 07-63-71-02-13) pour tout renseignement sur cette maison, sur les modalités de vente et sur les démarches à suivre. Faites de vos projets immobiliers une réalité avec Maisons Balency Baillet-en-France.
Annonce proposée par un Agent Commercial Partenaire.
Mentions légales
Terrain proposé par un partenaire foncier selon disponibilités et autorisation de publicité au prix de 255 000 €. Hors droit d'enregistrement et frais de notaire. Terrain + Maison proposés au prix de 450 000 € (Hors branchements et raccordements, papiers peints, peintures, revêtement de sol dans les chambres. Tarif modifiable sans préavis). Etiquette énergie : A. Différents modèles disponibles pour ce terrain. Assurances et garanties du constructeur (RC professionnelle, décennale, dommage ouvrage, garantie de remboursement de l'acompte, livraison à prix et délai convenu) : https://www.maisons-balency.fr/informations-legales/. HEXAOM Services est enregistré auprès de l'ORIAS en tant que Courtier en financement, Niveau 1, sous le numéro 14001345.Agence Maisons Balency de Baillet-en-France (95560)
- Téléphone :
- 01 34 46 05 23
- Adressse :
- 81 rue de Paris
95560 Baillet-en-France, France
