Maison neuve à
Armentières-en-Brie
(77440) Référence :
AC2278111_4
Prix du projet : Maison avec Terrain
prix 454 000 €
- 4 pièces
- 3 chambres
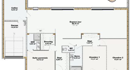
- Surface maison 120 m2
🏡 NOUVEAUTÉ - Maison Innovante à Ossature Bois | Confort, Design & Écologie 🌿 à Armentières en Brie
Découvrez cette maison exclusive à ossature bois, un concentré d'innovation, de confort et de durabilité, pensée pour répondre aux nouveaux modes de vie et aux exigences environnementales actuelles.
✨ Architecture moderne & chaleureuse :
Lignes épurées, bardage bois naturel ou peint, grandes baies vitrées pour une luminosité maximale... Cette maison allie design contemporain et ambiance chaleureuse, avec des finitions haut de gamme.
Construction écoresponsable :
Grâce à sa structure en ossature bois, cette maison offre une empreinte carbone réduite, une excellente performance thermique et une régulation naturelle de l'humidité. Elle est conçue pour durer, tout en respectant l'environnement.
🔥 Confort de vie optimal :
Isolation renforcée & étanchéité à l'air hautement performante
Chauffage économique (pompe à chaleur / poêle à granulés au choix)
Domotique intégrée pour un habitat connecté et intuitif
🌍 Un habitat tourné vers demain :
Réduction des consommations, matériaux biosourcés, recyclables, chantier propre... Ce modèle est labelisé RE2020, gage de performance énergétique et de confort été comme hiver.
📞 Mr Charlec Alexis 06.63.28.91.79
📍 Armentières en Brie
🏠 Maisons Balency - L'innovation au service de l'habitat durable
Mentions légales
Terrain proposé par un partenaire foncier selon disponibilités et autorisation de publicité au prix de 135 975 €. Hors droit d'enregistrement et frais de notaire. Maison proposée, avec un contrat de construction de maison individuelle, dans le cadre de la loi du 19/12/1990, au prix de 318 025 € (Hors branchements et raccordements, papiers peints, peintures, revêtement de sol dans les chambres, qui sont chiffrés dans les travaux qui restent à charge du client. Tarif modifiable sans préavis). Étiquette énergie : A. Différents modèles disponibles pour ce terrain. Assurances et garanties du constructeur comprises (RC professionnelle, décennale, dommage ouvrage).Agence Maisons Balency de Mareuil-lès-Meaux (77100)
- Téléphone :
- 01 60 38 39 79
- Adressse :
- 19 rue de la Hayette
77100 Mareuil-lès-Meaux, France
