Maison neuve à
Arpajon
(91290) Référence :
KM2426047_1
Prix du projet : Maison avec Terrain
prix 650 000 €
- 7 pièces
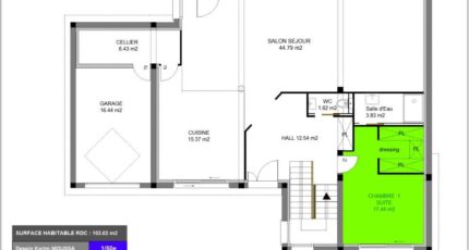
- 4 chambres
- Surface maison 160 m2
À vendre - PROJET TERRAIN + CONSTRUCTION TOITURE TERRASSE - PROCHE ARPAJON
764 m² - Belle façade de 16 m - Viabilisé - Cadre privilégié
ce superbe terrain à bâtir de 764 m², 16 m de facade, bénéficiant d'une belle façade, offre un cadre de vie rare et privilégié, idéal pour concrétiser un projet de construction de qualité.
Le terrain est entièrement viabilisé, vous permettant de démarrer votre projet dans des conditions optimales. Il sera également clos par un mur en pierre, réalisé par le vendeur, apportant charme, sécurité et cachet à votre future propriété.
Vous profiterez d'un environnement calme et verdoyant, tout en restant proche des commodités et des axes de transport. La gare RER C se situe à seulement 6 km, facilitant vos déplacements quotidiens vers Paris et les communes environnantes.
Le village séduit par son cadre privilégié, son esprit village et sa qualité de vie, très appréciés des familles comme des actifs.
Une opportunité rare sur le secteur pour un projet de construction sur une belle parcelle.
Pour plus d'informations ou pour étudier votre projet, contactez Maisons Balency - Groupe Hexaôm, Agence d'Ormoy, leader français de la construction de maisons individuelles depuis plus de 100 ans.
Agence d'Ormoy - 06 49 43 56 27
Annonce proposée par un Agent Commercial Partenaire.
Mentions légales
Terrain proposé par un partenaire foncier selon disponibilités et autorisation de publicité au prix de 240 000 €. Hors droit d'enregistrement et frais de notaire. Terrain + Maison proposés au prix de 650 000 € (Hors branchements et raccordements, papiers peints, peintures, revêtement de sol dans les chambres. Tarif modifiable sans préavis). Etiquette énergie : A. Différents modèles disponibles pour ce terrain. Assurances et garanties du constructeur (RC professionnelle, décennale, dommage ouvrage, garantie de remboursement de l'acompte, livraison à prix et délai convenu) : https://www.maisons-balency.fr/informations-legales/. HEXAOM Services est enregistré auprès de l'ORIAS en tant que Courtier en financement, Niveau 1, sous le numéro 14001345.Agence Maisons Balency de Ormoy (91540)
- Téléphone :
- 09 67 70 15 81
- Adressse :
- 23 chemin de Tournenfils - 1er étage
91540 Ormoy, France
