Maison neuve à
Arques-la-Bataille (76880) Référence : RC2455616_3

Prix du projet : Maison avec Terrain

prix 274 327 €

  • 6 pièces
  • 4 chambres
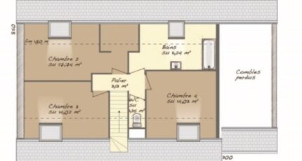
  • Surface maison 117 m2

A construire : maison T6 (117 m²) à Arques-la-Bataille
IDÉALEMENT SITUÉE - MAISON 6 PIÈCES NEUVE
En vente à 9 km de la Manche et à 5 km de Dieppe, découvrez cette maison de 6 pièces de plain-pied de 117 m² et de 762 m² de terrain idéalement située dans Arques-la-Bataille (76880). Elle comporte quatre chambres, une cuisine et deux salles de bains.
La maison est neuve.
La maison est située dans un quartier attractif. Des établissements scolaires primaires se trouvent à moins de 10 minutes à pied, tout comme, parmi lesquels le Groupe Scolairre Louis Germain. Côté transports en commun, il y a les gares Saint-Aubin-sur-Scie et Dieppe à moins de 10 minutes en voiture. La nationale N27 est accessible à 8 km. On trouve un commerce, une poissonnerie, une supérette, une boucherie-charcuterie et un bureau de poste à quelques minutes à peine.
Son prix de vente est de 274 327 €.
Prenez contact avec notre agence (Célia RENIER : 07-62-90-87-77) pour toute information sur la maison, sur les démarches à suivre ou sur les modalités de vente. Faites de vos projets immobiliers une réalité avec Maisons Balency Boos.

Annonce proposée par un Agent Commercial Partenaire.

Mentions légales

Terrain proposé par un partenaire foncier selon disponibilités et autorisation de publicité au prix de 56 900 €. Hors droit d'enregistrement et frais de notaire. Terrain + Maison proposés au prix de 274 327 € (Hors branchements et raccordements, papiers peints, peintures, revêtement de sol dans les chambres. Tarif modifiable sans préavis). Etiquette énergie : A. Différents modèles disponibles pour ce terrain. Assurances et garanties du constructeur (RC professionnelle, décennale, dommage ouvrage, garantie de remboursement de l'acompte, livraison à prix et délai convenu) : https://www.maisons-balency.fr/informations-legales/. HEXAOM Services est enregistré auprès de l'ORIAS en tant que Courtier en financement, Niveau 1, sous le numéro 14001345.

Contactez l'agence de Boos

02 35 80 66 66

    * Champs obligatoires

    Vos informations sont traitées par HEXAOM et transmises à un conseiller commercial qui vous contactera afin de répondre à votre demande. Les plans et images présentés sur notre site sont la propriété d’HEXAOM et ne peuvent pas être reproduits sans son accord. Pour retrouver notre politique de protection des données personnelles et exercer vos droits conformément à la « loi informatique et liberté » cliquez-ici.