Maison neuve à
Arques-la-Bataille (76880) Référence : RC2455616_4

Prix du projet : Maison avec Terrain

prix 257 296 €

  • 6 pièces
  • 4 chambres
  • Surface maison 98 m2

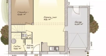
Arques-la-Bataille : maison F6 (98 m²) à construire.
IDÉALEMENT SITUÉE - MAISON 6 PIÈCES NEUVE
À vendre à 9 km de la Manche et à deux pas de Dieppe, Maisons Balency Boos vous présente cette maison de 6 pièces de 98 m² et de 762 m² de terrain idéalement située dans Arques-la-Bataille (76880). Elle inclut quatre chambres, une cuisine et une salle de bains.
Cette maison possède 2 niveaux. Elle est neuve.
Cette maison se situe dans un secteur convoité. Des écoles primaires se trouvent à moins de 10 minutes à pied, tout comme, comme le Groupe Scolairre Louis Germain. Niveau transports, il y a deux gares (Saint-Aubin-sur-Scie et Dieppe) à moins de 10 minutes en voiture. La nationale N27 est accessible à 8 km. On trouve un commerce, une boucherie-charcuterie, une supérette, une poissonnerie et un bureau de poste à proximité du logement.
Son prix de vente est de 257 296 €.
Contactez notre agence (Célia RENIER : 07-62-90-87-77) pour tout renseignement sur la maison, sur les démarches à suivre ou sur les modalités de vente.

Annonce proposée par un Agent Commercial Partenaire.

Mentions légales

Terrain proposé par un partenaire foncier selon disponibilités et autorisation de publicité au prix de 56 900 €. Hors droit d'enregistrement et frais de notaire. Terrain + Maison proposés au prix de 257 296 € (Hors branchements et raccordements, papiers peints, peintures, revêtement de sol dans les chambres. Tarif modifiable sans préavis). Etiquette énergie : A. Différents modèles disponibles pour ce terrain. Assurances et garanties du constructeur (RC professionnelle, décennale, dommage ouvrage, garantie de remboursement de l'acompte, livraison à prix et délai convenu) : https://www.maisons-balency.fr/informations-legales/. HEXAOM Services est enregistré auprès de l'ORIAS en tant que Courtier en financement, Niveau 1, sous le numéro 14001345.

Contactez l'agence de Boos

02 35 80 66 66

    * Champs obligatoires

    Vos informations sont traitées par HEXAOM et transmises à un conseiller commercial qui vous contactera afin de répondre à votre demande. Les plans et images présentés sur notre site sont la propriété d’HEXAOM et ne peuvent pas être reproduits sans son accord. Pour retrouver notre politique de protection des données personnelles et exercer vos droits conformément à la « loi informatique et liberté » cliquez-ici.