Maison neuve à
Arsy
(60190) Référence :
AF2316758_1
Prix du projet : Maison avec Terrain
prix 420 000 €
- 7 pièces
- 4 chambres
- Surface maison 160 m2
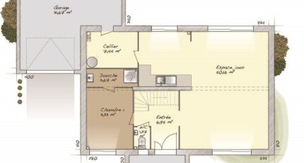
VENTE : maison de 7 pièces (160 m²) à Arsy
MAISON 7 PIÈCES NEUVE - PROCHE DE COMPIÈGNE
À quelques kilomètres de Compiègne, nous vous présentons cette maison de 7 pièces de 160 m² et de 500 m² de terrain en vente à Arsy (60190).
Cette maison compte 2 niveaux. Elle dispose de quatre chambres, d'une cuisine et de deux salles de bains. La maison est neuve.
L'École Primaire Séraphine Louis est implantée à moins de 10 minutes à pied. Côté transports, on trouve six gares à moins de 10 minutes en voiture. L'autoroute A1 et la nationale N31 sont accessibles à moins de 2 km. Il y a une bibliothèque dans les environs.
Elle est à vendre pour la somme de 420 000 €.
Prenez contact avec notre agence (FLIPPE Antoine : 07-82-59-37-75) pour plus de renseignements sur la maison. Concrétisez vos projets immobiliers avec Maisons Balency Baillet-en-France.
Annonce proposée par un Agent Commercial Partenaire.
Mentions légales
Terrain proposé par un partenaire foncier selon disponibilités et autorisation de publicité au prix de 90 000 €. Hors droit d'enregistrement et frais de notaire. Maison proposée, avec un contrat de construction de maison individuelle, dans le cadre de la loi du 19/12/1990, au prix de 330 000 € (Hors branchements et raccordements, papiers peints, peintures, revêtement de sol dans les chambres, qui sont chiffrés dans les travaux qui restent à charge du client. Tarif modifiable sans préavis). Étiquette énergie : A. Différents modèles disponibles pour ce terrain. Assurances et garanties du constructeur comprises (RC professionnelle, décennale, dommage ouvrage).Agence Maisons Balency de Baillet-en-France (95560)
- Téléphone :
- 01 34 46 05 23
- Adressse :
- 81 rue de Paris
95560 Baillet-en-France, France
