Maison neuve à
Arsy
(60190) Référence :
AF2316758_3
Prix du projet : Maison avec Terrain
prix 315 000 €
- 6 pièces
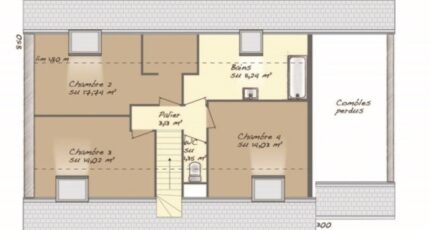
- 4 chambres
- Surface maison 117 m2
Arsy : maison T6 (117 m²) à vendre
MAISON 6 PIÈCES NEUVE - PROCHE DE COMPIÈGNE
À quelques kilomètres de Compiègne, en vente à Arsy (60190), Maisons Balency Baillet-en-France vous présente cette maison de 6 pièces de plain-pied de 117 m² et de 500 m² de terrain. Conçue de plain-pied, elle compte quatre chambres, une cuisine et deux salles de bains.
Cette maison est neuve.
L'École Primaire Séraphine Louis est implantée à moins de 10 minutes à pied. Côté transports, on trouve six gares à moins de 10 minutes en voiture. L'autoroute A1 et la nationale N31 sont accessibles à moins de 2 km. Il y a une bibliothèque à quelques minutes du bien.
Elle est proposée à l'achat pour 315 000 €.
N'hésitez pas à prendre contact avec Antoine FLIPPE (tél : 07-82-59-37-75) pour toute information sur cette maison, sur les modalités de vente ou sur les démarches à suivre.
Annonce proposée par un Agent Commercial Partenaire.
Mentions légales
Terrain proposé par un partenaire foncier selon disponibilités et autorisation de publicité au prix de 90 000 €. Hors droit d'enregistrement et frais de notaire. Maison proposée, avec un contrat de construction de maison individuelle, dans le cadre de la loi du 19/12/1990, au prix de 225 000 € (Hors branchements et raccordements, papiers peints, peintures, revêtement de sol dans les chambres, qui sont chiffrés dans les travaux qui restent à charge du client. Tarif modifiable sans préavis). Étiquette énergie : A. Différents modèles disponibles pour ce terrain. Assurances et garanties du constructeur comprises (RC professionnelle, décennale, dommage ouvrage).Agence Maisons Balency de Baillet-en-France (95560)
- Téléphone :
- 01 34 46 05 23
- Adressse :
- 81 rue de Paris
95560 Baillet-en-France, France
