Maison neuve à
Arsy
(60190) Référence :
TW2324647_5
Prix du projet : Maison avec Terrain
prix 236 000 €
- 6 pièces
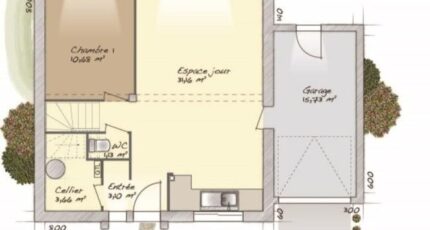
- 4 chambres
- Surface maison 90 m2
VENTE d'une maison T6 (90 m²) à Arsy
CENTRE-VILLE - MAISON 6 PIÈCES NEUVE
À vendre : à deux pas de Compiègne, Maisons Balency Baillet-en-France vous propose cette maison de 6 pièces de 90 m² et de 435 m² de terrain à Arsy (60190), en centre-ville. Elle compte quatre chambres, une cuisine et une salle de bains.
Cette maison comporte 2 niveaux. Elle est neuve.
L'École Primaire Séraphine Louis se trouve à moins de 10 minutes à pied. Niveau transports, il y a six gares à moins de 10 minutes en voiture. L'autoroute A1 et la nationale N31 sont accessibles à moins de 2 km. On trouve une bibliothèque à quelques minutes.
Son prix de vente est de 236 000 €.
N'hésitez pas à prendre contact avec Théo WIECZOREK (tél : 07-63-71-02-13) pour toute question sur la maison, sur les modalités de vente ou sur les démarches à suivre. Maisons Balency Baillet-en-France est là pour vous accompagner dans tous vos projets immobiliers.
Annonce proposée par un Agent Commercial Partenaire.
Mentions légales
Terrain proposé par un partenaire foncier selon disponibilités et autorisation de publicité au prix de 80 900 €. Hors droit d'enregistrement et frais de notaire. Terrain + Maison proposés au prix de 155 100 € (Hors branchements et raccordements, papiers peints, peintures, revêtement de sol dans les chambres. Tarif modifiable sans préavis). Etiquette énergie : A. Différents modèles disponibles pour ce terrain. Assurances et garanties du constructeur (RC professionnelle, décennale, dommage ouvrage, garantie de remboursement de l'acompte, livraison à prix et délai convenu) : https://www.maisons-balency.fr/informations-legales/. HEXAOM Services est enregistré auprès de l'ORIAS en tant que Courtier en financement, Niveau 1, sous le numéro 14001345.Agence Maisons Balency de Baillet-en-France (95560)
- Téléphone :
- 01 34 46 05 23
- Adressse :
- 81 rue de Paris
95560 Baillet-en-France, France
