Maison neuve à
Attainville
(95570) Référence :
MU2251428_1
Prix du projet : Maison avec Terrain
prix 499 000 €
- 7 pièces
- 5 chambres
- Surface maison 160 m2
Maison T7 (160 m²) à vendre à Attainville
IDÉALEMENT SITUÉE - MAISON 7 PIÈCES NEUVE
À vendre : à proximité de la gare de Montsoult-Maffliers (Paris à 25 min par le Transilien H), votre agence Maisons Balency Pierrelaye est heureuse de vous proposer, idéalement située dans Attainville (95570), cette maison de 7 pièces de 160 m² et de 436 m² de terrain avec vue sur jardin.
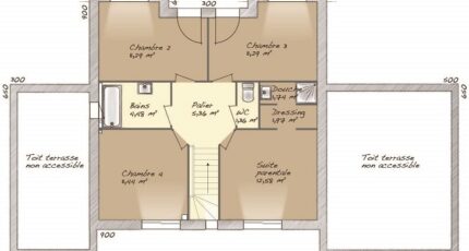
Cette maison compte 2 niveaux. Son intérieur propose cinq chambres, une cuisine et trois salles de bains. Cette maison est neuve.
La maison se situe dans un quartier recherché. On trouve l'École Primaire Micheline Lefèvre à moins de 10 minutes à pied. Niveau transports, il y a la ligne de RER D (Villiers-Le-Bel-Gonesse-Arnouville) ainsi que 25 gares à moins de 10 minutes en voiture. Il y a un tennis à proximité.
Elle est proposée à l'achat pour 499 000 €.
Contactez Mylann URBANSKY (tél : 06-23-32-28-23) pour tout renseignement sur la propriété ou sur les démarches à suivre. Donnez vie à vos projets immobiliers avec Maisons Balency Pierrelaye.
Annonce proposée par un Agent Commercial Partenaire.
Mentions légales
Terrain proposé par un partenaire foncier selon disponibilités et autorisation de publicité au prix de 210 000 €. Hors droit d'enregistrement et frais de notaire. Maison proposée, avec un contrat de construction de maison individuelle, dans le cadre de la loi du 19/12/1990, au prix de 289 000 € (Hors branchements et raccordements, papiers peints, peintures, revêtement de sol dans les chambres, qui sont chiffrés dans les travaux qui restent à charge du client. Tarif modifiable sans préavis). Étiquette énergie : A. Différents modèles disponibles pour ce terrain. Assurances et garanties du constructeur comprises (RC professionnelle, décennale, dommage ouvrage).Agence Maisons Balency de Baillet-en-France (95560)
- Téléphone :
- 01 34 46 05 23
- Adressse :
- 81 rue de Paris
95560 Baillet-en-France, France
