Maison neuve à
Attainville
(95570) Référence :
MU2305759_5
Prix du projet : Maison avec Terrain
prix 430 000 €
- 5 pièces
- 3 chambres
- Surface maison 90 m2
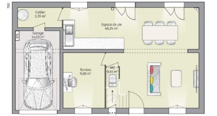
VENTE d'une maison T5 (90 m²) à Attainville
IDÉALEMENT SITUÉE - MAISON 5 PIÈCES NEUVE
À vendre : à côté du Transilien H (gare de Montsoult-Maffliers, 25 min de Paris), idéalement située dans Attainville (95570), votre agence Maisons Balency Baillet-en-France est heureuse de vous présenter cette maison de 5 pièces de 90 m². Elle inclut trois chambres, une cuisine et une salle de bains.
Le terrain de cette maison est de 640 m².
Il s'agit d'une maison de 2 niveaux. Elle est neuve.
La maison est située dans un secteur convoité. L'École Primaire Micheline Lefèvre se trouve à moins de 10 minutes à pied. Niveau transports, il y a la ligne de RER D (Villiers-Le-Bel-Gonesse-Arnouville) ainsi que 25 gares à moins de 10 minutes en voiture. On trouve un tennis dans les environs.
Elle est à vendre pour la somme de 430 000 €.
Contactez notre agence (Mylann URBANSKY : 06-23-32-28-23) pour toute question sur la maison, sur les modalités de vente ou sur les démarches à suivre.
Annonce proposée par un Agent Commercial Partenaire.
Mentions légales
Terrain proposé par un partenaire foncier selon disponibilités et autorisation de publicité au prix de 270 000 €. Hors droit d'enregistrement et frais de notaire. Maison proposée, avec un contrat de construction de maison individuelle, dans le cadre de la loi du 19/12/1990, au prix de 160 000 € (Hors branchements et raccordements, papiers peints, peintures, revêtement de sol dans les chambres, qui sont chiffrés dans les travaux qui restent à charge du client. Tarif modifiable sans préavis). Étiquette énergie : A. Différents modèles disponibles pour ce terrain. Assurances et garanties du constructeur comprises (RC professionnelle, décennale, dommage ouvrage).Agence Maisons Balency de Baillet-en-France (95560)
- Téléphone :
- 01 34 46 05 23
- Adressse :
- 81 rue de Paris
95560 Baillet-en-France, France
