Maison neuve à
Attainville
(95570) Référence :
CT2352793_1
Prix du projet : Maison avec Terrain
prix 398 500 €
- 6 pièces
- 5 chambres
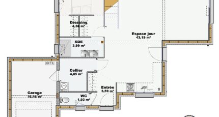
- Surface maison 124 m2
VENTE d'une maison de 6 pièces (124 m²) à Attainville
IDÉALEMENT SITUÉE - MAISON 6 PIÈCES NEUVE
À proximité du Transilien H (gare de Montsoult-Maffliers, 25 min de Paris), nous sommes heureux de vous présenter cette maison de 6 pièces de 124 m² avec vue sur espace vert en vente idéalement située dans Attainville (95570). Son intérieur dispose de cinq chambres, d'une cuisine et de deux salles de bains.
Le terrain de la propriété s'étend sur 303 m².
Cette maison comporte 2 niveaux. Elle est neuve.
La maison se situe dans un quartier prisé. L'École Primaire Micheline Lefèvre se trouve à moins de 10 minutes à pied. Côté transports en commun, il y a la ligne de RER D (Villiers-Le-Bel-Gonesse-Arnouville) ainsi que 25 gares à moins de 10 minutes en voiture. On trouve un tennis dans les environs.
Elle est proposée à l'achat pour 398 500 €.
N'hésitez pas à prendre contact avec Christophe TALAMONI (06-49-55-08-27) pour toute question sur la maison, sur les modalités de vente ou sur les démarches à suivre.
Annonce proposée par un Agent Commercial Partenaire.
Mentions légales
Terrain proposé par un partenaire foncier selon disponibilités et autorisation de publicité au prix de 190 000 €. Hors droit d'enregistrement et frais de notaire. Maison proposée, avec un contrat de construction de maison individuelle, dans le cadre de la loi du 19/12/1990, au prix de 208 500 € (Hors branchements et raccordements, papiers peints, peintures, revêtement de sol dans les chambres, qui sont chiffrés dans les travaux qui restent à charge du client. Tarif modifiable sans préavis). Étiquette énergie : A. Différents modèles disponibles pour ce terrain. Assurances et garanties du constructeur comprises (RC professionnelle, décennale, dommage ouvrage).Agence Maisons Balency de Baillet-en-France (95560)
- Téléphone :
- 01 34 46 05 23
- Adressse :
- 81 rue de Paris
95560 Baillet-en-France, France
