Maison neuve à
Attainville
(95570) Référence :
MU2354374_5
Prix du projet : Maison avec Terrain
prix 350 000 €
- 5 pièces
- 3 chambres
- Surface maison 90 m2
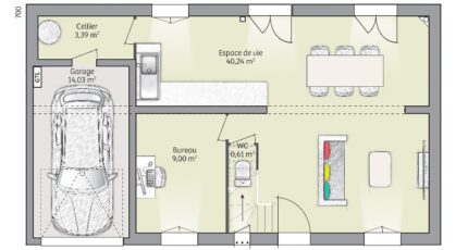
VENTE : maison de 5 pièces (90 m²) à Attainville
IDÉALEMENT SITUÉE - MAISON 5 PIÈCES NEUVE
À vendre : proche du Transilien H (gare de Montsoult-Maffliers, 25 min de Paris), idéalement située dans Attainville (95570), nous vous proposons cette maison de 5 pièces de 90 m². Son intérieur est composé de trois chambres, d'une cuisine et d'une salle de bains.
Le terrain de la propriété s'étend sur 303 m².
Cette maison possède 2 niveaux. Elle est neuve.
La maison est située dans un quartier attractif. On trouve l'École Primaire Micheline Lefèvre à moins de 10 minutes à pied. Niveau transports en commun, il y a la ligne de RER D (Villiers-Le-Bel-Gonesse-Arnouville) ainsi que 25 gares à moins de 10 minutes en voiture. Il y a un tennis dans les environs.
Son prix de vente est de 350 000 €.
N'hésitez pas à prendre contact avec notre agence (URBANSKY Mylann : 06-23-32-28-23) pour toute information sur le bien ou sur les démarches à suivre. Maisons Balency Baillet-en-France est là pour vous accompagner dans tous vos projets immobiliers.
Annonce proposée par un Agent Commercial Partenaire.
Mentions légales
Terrain proposé par un partenaire foncier selon disponibilités et autorisation de publicité au prix de 190 000 €. Hors droit d'enregistrement et frais de notaire. Terrain + Maison proposés au prix de 350 000 € (Hors branchements et raccordements, papiers peints, peintures, revêtement de sol dans les chambres. Tarif modifiable sans préavis). Etiquette énergie : A. Différents modèles disponibles pour ce terrain. Assurances et garanties du constructeur (RC professionnelle, décennale, dommage ouvrage, garantie de remboursement de l'acompte, livraison à prix et délai convenu) : https://www.maisons-balency.fr/informations-legales/. HEXAOM Services est enregistré auprès de l'ORIAS en tant que Courtier en financement, Niveau 1, sous le numéro 14001345.Agence Maisons Balency de Baillet-en-France (95560)
- Téléphone :
- 01 34 46 05 23
- Adressse :
- 81 rue de Paris
95560 Baillet-en-France, France
