Maison neuve à
Attainville
(95570) Référence :
TW2454657_4
Prix du projet : Maison avec Terrain
prix 485 000 €
- 7 pièces
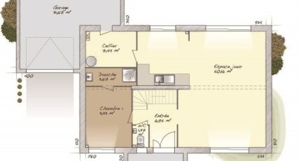
- 4 chambres
- Surface maison 160 m2
Attainville : maison de 7 pièces (160 m²) à vendre
IDÉALEMENT SITUÉE - MAISON 7 PIÈCES NEUVE
À quelques minutes de la gare de Montsoult-Maffliers (Paris à 25 min avec le Transilien H), nous sommes ravis de vous proposer cette maison de 7 pièces de 160 m² idéalement située dans Attainville (95570).
Cette maison compte 2 niveaux. Son intérieur offre quatre chambres, une cuisine et deux salles de bains. La maison est neuve.
Le terrain du bien est de 430 m².
Ce bien est situé dans un secteur attractif. Il y a l'École Primaire Micheline Lefèvre à moins de 10 minutes à pied. Niveau transports, on trouve la ligne de RER D (Villiers-Le-Bel-Gonesse-Arnouville) ainsi que 25 gares à moins de 10 minutes en voiture. On trouve un tennis à proximité de la maison.
Il est proposé à l'achat pour 485 000 €.
N'hésitez pas à prendre contact avec notre agence (WIECZOREK Théo : 07-63-71-02-13) pour toute question sur la maison, sur les modalités de vente ou sur les démarches à suivre. Concrétisez vos projets immobiliers avec Maisons Balency Baillet-en-France.
Annonce proposée par un Agent Commercial Partenaire.
Mentions légales
Terrain proposé par un partenaire foncier selon disponibilités et autorisation de publicité au prix de 210 000 €. Hors droit d'enregistrement et frais de notaire. Terrain + Maison proposés au prix de 485 000 € (Hors branchements et raccordements, papiers peints, peintures, revêtement de sol dans les chambres. Tarif modifiable sans préavis). Etiquette énergie : A. Différents modèles disponibles pour ce terrain. Assurances et garanties du constructeur (RC professionnelle, décennale, dommage ouvrage, garantie de remboursement de l'acompte, livraison à prix et délai convenu) : https://www.maisons-balency.fr/informations-legales/. HEXAOM Services est enregistré auprès de l'ORIAS en tant que Courtier en financement, Niveau 1, sous le numéro 14001345.Agence Maisons Balency de Baillet-en-France (95560)
- Téléphone :
- 01 34 46 05 23
- Adressse :
- 81 rue de Paris
95560 Baillet-en-France, France
