Maison neuve à
Attainville
(95570) Référence :
WB2457061_3
Prix du projet : Maison avec Terrain
prix 550 000 €
- 6 pièces
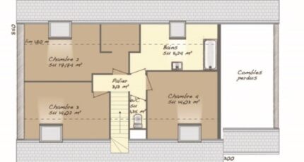
- 4 chambres
- Surface maison 117 m2
Attainville : maison de 6 pièces (117 m²) en vente
PROCHE DE PARIS - MAISON 6 PIÈCES NEUVE
À vendre : à deux pas de la gare de Montsoult-Maffliers (Paris à 25 min avec le Transilien H), notre agence Maisons Balency Baillet-en-France est heureuse de vous présenter cette maison de 6 pièces de plain-pied de 117 m² et de 784 m² de terrain à Attainville (95570).
Son intérieur se divise en quatre chambres, une cuisine et deux salles de bains. Cette maison est neuve.
L'École Primaire Micheline Lefèvre est implantée à moins de 10 minutes à pied. Côté transports, on trouve la ligne de RER D (Villiers-Le-Bel-Gonesse-Arnouville) ainsi que 25 gares à moins de 10 minutes en voiture. Il y a un tennis à quelques minutes de la maison.
Son prix de vente est de 550 000 €.
Contactez notre agence (William BIDAN : 06-22-45-69-29) pour toute question sur le bien, sur les modalités de vente ou sur les démarches à suivre. Maisons Balency Baillet-en-France est là pour vous accompagner dans tous vos projets immobiliers.
Annonce proposée par un Agent Commercial Partenaire.
Mentions légales
Terrain proposé par un partenaire foncier selon disponibilités et autorisation de publicité au prix de 280 000 €. Hors droit d'enregistrement et frais de notaire. Terrain + Maison proposés au prix de 550 000 € (Hors branchements et raccordements, papiers peints, peintures, revêtement de sol dans les chambres. Tarif modifiable sans préavis). Etiquette énergie : A. Différents modèles disponibles pour ce terrain. Assurances et garanties du constructeur (RC professionnelle, décennale, dommage ouvrage, garantie de remboursement de l'acompte, livraison à prix et délai convenu) : https://www.maisons-balency.fr/informations-legales/. HEXAOM Services est enregistré auprès de l'ORIAS en tant que Courtier en financement, Niveau 1, sous le numéro 14001345.Agence Maisons Balency de Baillet-en-France (95560)
- Téléphone :
- 01 34 46 05 23
- Adressse :
- 81 rue de Paris
95560 Baillet-en-France, France
