Maison neuve à
Auffay (76720) Référence : RC2421837_3

Prix du projet : Maison avec Terrain

prix 304 879 €

  • 6 pièces
  • 3 chambres
  • Surface maison 133 m2

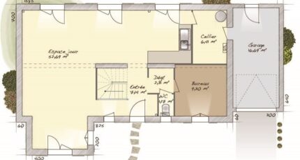
à construire : maison de 6 pièces (133 m²) à Auffay
IDÉALEMENT SITUÉE - MAISON 6 PIÈCES NEUVE
À 23 km de la Manche et à quelques kilomètres de Rouen, en vente idéalement située dans Auffay (76720), Maisons Balency Boos vous propose cette maison de 6 pièces de 133 m².
Cette maison comporte 2 niveaux. Elle offre trois chambres, une cuisine et deux salles de bains. Cette maison est neuve.
Le terrain du bien est de 594 m².
Cette maison se trouve dans un quartier prisé. Il y a des écoles maternelles et élémentaires à moins de 10 minutes à pied et dont l'École Élémentaire Jean Quesnay. Niveau transports en commun, on trouve la gare Auffay juste à côté. Les autoroutes A151 et A29 et la nationale N27 sont accessibles à moins de 10 km. Il y a un tennis, quatre boulangeries, des commerces, deux supermarchés, quatre boucheries-charcuteries et un bureau de poste à quelques minutes. Enfin, le marché Place Blekedé a lieu chaque vendredi matin.
Son prix de vente est de 304 879 €.
N'hésitez pas à prendre contact avec Célia RENIER (tél : 07-62-90-87-77) pour toute information sur la maison. Faites de vos projets immobiliers une réalité avec Maisons Balency Boos.

Annonce proposée par un Agent Commercial Partenaire.

Mentions légales

Terrain proposé par un partenaire foncier selon disponibilités et autorisation de publicité au prix de 42 400 €. Hors droit d'enregistrement et frais de notaire. Terrain + Maison proposés au prix de 304 879 € (Hors branchements et raccordements, papiers peints, peintures, revêtement de sol dans les chambres. Tarif modifiable sans préavis). Etiquette énergie : A. Différents modèles disponibles pour ce terrain. Assurances et garanties du constructeur (RC professionnelle, décennale, dommage ouvrage, garantie de remboursement de l'acompte, livraison à prix et délai convenu) : https://www.maisons-balency.fr/informations-legales/. HEXAOM Services est enregistré auprès de l'ORIAS en tant que Courtier en financement, Niveau 1, sous le numéro 14001345.

Contactez l'agence de Boos

02 35 80 66 66

    * Champs obligatoires

    Vos informations sont traitées par HEXAOM et transmises à un conseiller commercial qui vous contactera afin de répondre à votre demande. Les plans et images présentés sur notre site sont la propriété d’HEXAOM et ne peuvent pas être reproduits sans son accord. Pour retrouver notre politique de protection des données personnelles et exercer vos droits conformément à la « loi informatique et liberté » cliquez-ici.