Maison neuve à
Aulnay-sous-Bois
(93600) Référence :
TW2324482_4
Prix du projet : Maison avec Terrain
prix 310 000 €
- 5 pièces
- 3 chambres
- Surface maison 90 m2
VENTE d'une maison de 5 pièces (90 m²) à Aulnay-sous-Bois
EMPLACEMENT PRIVILÉGIÉ - MAISON 5 PIÈCES NEUVE
À quelques minutes du RER B (15 min de Paris), Maisons Balency Baillet-en-France vous propose cette maison de 5 pièces de 90 m² à vendre bénéficiant d'un emplacement privilégié dans Aulnay-sous-Bois (93600).
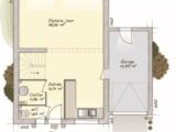
C'est une maison de 2 niveaux. Son intérieur compte trois chambres, une cuisine et une salle de bains. La maison est neuve.
Le terrain de la propriété s'étend sur 370 m².
Cette propriété est située dans un quartier prisé. Tous les types d'établissements scolaires (de la maternelle au lycée) sont implantés à moins de 10 minutes à pied, tout comme deux crèches. Côté transports, il y a le RER B, E, D et A ainsi que 40 gares à moins de 10 minutes en voiture. On trouve une bibliothèque, deux tennis, un bassin de natation, deux supermarchés, des commerces, des boulangeries, deux supérettes et un bureau de poste dans les environs.
Elle est proposée à l'achat pour 310 000 €.
Prenez contact avec Théo WIECZOREK (tél : 07-63-71-02-13) pour tout renseignement sur la maison, sur les modalités de vente ou sur les démarches à suivre. Maisons Balency Baillet-en-France est là pour vous accompagner dans tous vos projets immobiliers.
Annonce proposée par un Agent Commercial Partenaire.
Mentions légales
Terrain proposé par un partenaire foncier selon disponibilités et autorisation de publicité au prix de 160 000 €. Hors droit d'enregistrement et frais de notaire. Maison proposée, avec un contrat de construction de maison individuelle, dans le cadre de la loi du 19/12/1990, au prix de 150 000 € (Hors branchements et raccordements, papiers peints, peintures, revêtement de sol dans les chambres, qui sont chiffrés dans les travaux qui restent à charge du client. Tarif modifiable sans préavis). Étiquette énergie : A. Différents modèles disponibles pour ce terrain. Assurances et garanties du constructeur comprises (RC professionnelle, décennale, dommage ouvrage).Agence Maisons Balency de Baillet-en-France (95560)
- Téléphone :
- 01 34 46 05 23
- Adressse :
- 81 rue de Paris
95560 Baillet-en-France, France
