Maison neuve à
Aulnay-sous-Bois
(93600) Référence :
TW2324495_5
Prix du projet : Maison avec Terrain
prix 305 000 €
- 5 pièces
- 3 chambres
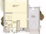
- Surface maison 80 m2
VENTE d'une maison T5 (80 m²) à Aulnay-sous-Bois
EMPLACEMENT PRIVILÉGIÉ - MAISON 5 PIÈCES NEUVE
À côté du RER B (15 min de Paris), venez découvrir cette maison de 5 pièces de 80 m² bénéficiant d'un emplacement privilégié dans Aulnay-sous-Bois (93600). Son intérieur est composé de trois chambres, d'une cuisine et d'une salle de bains.
Le terrain de la propriété est de 480 m².
C'est une maison de 2 niveaux. Elle est neuve.
La maison est située dans un secteur recherché. Tous les types d'écoles sont implantés à moins de 10 minutes à pied, tout comme deux structures d'accueil pour les enfants en bas âge. Niveau transports, on trouve les lignes B, E, D et A du RER ainsi que 40 gares à moins de 10 minutes en voiture. Il y a une bibliothèque, deux tennis, un bassin de natation, deux supermarchés, des commerces, des boulangeries, un bureau de poste et des boucheries-charcuteries dans les environs.
Elle est à vendre pour la somme de 305 000 €.
Prenez contact avec notre agence (WIECZOREK Théo : 07-63-71-02-13) pour toute information sur la maison et sur les démarches à suivre. Concrétisez vos projets immobiliers avec Maisons Balency Baillet-en-France.
Annonce proposée par un Agent Commercial Partenaire.
Mentions légales
Terrain proposé par un partenaire foncier selon disponibilités et autorisation de publicité au prix de 165 000 €. Hors droit d'enregistrement et frais de notaire. Terrain + Maison proposés au prix de 305 000 € (Hors branchements et raccordements, papiers peints, peintures, revêtement de sol dans les chambres. Tarif modifiable sans préavis). Etiquette énergie : A. Différents modèles disponibles pour ce terrain. Assurances et garanties du constructeur (RC professionnelle, décennale, dommage ouvrage, garantie de remboursement de l'acompte, livraison à prix et délai convenu) : https://www.maisons-balency.fr/informations-legales/. HEXAOM Services est enregistré auprès de l'ORIAS en tant que Courtier en financement, Niveau 1, sous le numéro 14001345.Agence Maisons Balency de Baillet-en-France (95560)
- Téléphone :
- 01 34 46 05 23
- Adressse :
- 81 rue de Paris
95560 Baillet-en-France, France
