Maison neuve à
Authie
(14280) Référence :
SU2383683_1
Prix du projet : Maison avec Terrain
prix 412 900 €
- 6 pièces
- 4 chambres
- Surface maison 90 m2
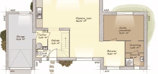
Maison de 6 pièces (90 m²) à vendre à Authie
EMPLACEMENT PRIVILÉGIÉ - MAISON 6 PIÈCES NEUVE
À vendre : à 15 km des plages de Courseulles sur Mer et à 5 km de Caen, notre agence Maisons Balency Caen est ravie de vous présenter, bénéficiant d'un emplacement d'exception dans Authie (14280), cette maison de 6 pièces de 90 m².
Il s'agit d'une maison de 2 niveaux. Son intérieur se divise en quatre chambres, une cuisine et deux salles de bains. Cette maison est neuve.
Le terrain de la propriété est de 414 m².
Cette maison est située dans un secteur attractif. Il y a l'École Primaire Bill Baillie à moins de 10 minutes à pied. Niveau transports en commun, la commune est desservie par les bus de ville, TWISTO et la gare de Caen est à moins de 10 minutes en voiture. L'autoroute A84 et les nationales N13 et N814 sont accessibles à moins de 6 km. On trouve un gymnase, une bibliothèque, deux boulangeries et un commerce dans les environs.
Elle est proposée à l'achat pour 412 900 €.
Prenez contact avec notre constructeur (UCENDO Sophie : 06-35-39-35-17) pour toute question sur la maison, sur les modalités de vente ou sur les démarches à suivre. Concrétisez vos projets immobiliers avec Maisons Balency Caen.
Mentions légales
Terrain proposé par un partenaire foncier selon disponibilités et autorisation de publicité au prix de 150 000 €. Hors droit d'enregistrement et frais de notaire. Terrain + Maison proposés au prix de 412 900 € (Hors branchements et raccordements, papiers peints, peintures, revêtement de sol dans les chambres. Tarif modifiable sans préavis). Etiquette énergie : A. Différents modèles disponibles pour ce terrain. Assurances et garanties du constructeur (RC professionnelle, décennale, dommage ouvrage, garantie de remboursement de l'acompte, livraison à prix et délai convenu) : https://www.maisons-balency.fr/informations-legales/. HEXAOM Services est enregistré auprès de l'ORIAS en tant que Courtier en financement, Niveau 1, sous le numéro 14001345.Agence Maisons Balency de Caen (14000)
- Téléphone :
- 02 31 50 38 15
- Adressse :
- 133, rue Saint Jean
14000 Caen, France
