Maison neuve à
Authie
(14280) Référence :
SU2383683_2
Prix du projet : Maison avec Terrain
prix 421 900 €
- 5 pièces
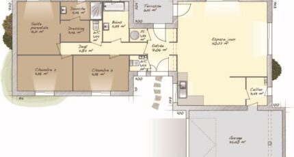
- 3 chambres
- Surface maison 120 m2
VENTE d'une maison F5 (120 m²) à Authie
EMPLACEMENT PRIVILÉGIÉ - MAISON 5 PIÈCES NEUVE
En vente : localisée à 15 km des plages de Courseulles sur Mer et à 5 km de Caen, bénéficiant d'un emplacement d'exception dans Authie (14280), laissez vous charmer par cette maison de 5 pièces de plain-pied de 120 m² et de 414 m² de terrain.
Elle inclut trois chambres, une cuisine et deux salles de bains. Cette maison est neuve.
La maison se trouve dans un secteur attractif. L'École Primaire Bill Baillie est implantée à moins de 10 minutes à pied. Niveau transports en commun, la commune est desservie par les bus de ville, TWISTO et la gare de Caen est à moins de 10 minutes en voiture. L'autoroute A84 et les nationales N13 et N814 sont accessibles à moins de 6 km. On trouve un gymnase, une bibliothèque, deux boulangeries et un commerce dans les environs.
Son prix de vente est de 421 900 €.
Contactez Sophie UCENDO (tél : 06-35-39-35-17) pour toute information sur la maison.
Mentions légales
Terrain proposé par un partenaire foncier selon disponibilités et autorisation de publicité au prix de 150 000 €. Hors droit d'enregistrement et frais de notaire. Terrain + Maison proposés au prix de 421 900 € (Hors branchements et raccordements, papiers peints, peintures, revêtement de sol dans les chambres. Tarif modifiable sans préavis). Etiquette énergie : A. Différents modèles disponibles pour ce terrain. Assurances et garanties du constructeur (RC professionnelle, décennale, dommage ouvrage, garantie de remboursement de l'acompte, livraison à prix et délai convenu) : https://www.maisons-balency.fr/informations-legales/. HEXAOM Services est enregistré auprès de l'ORIAS en tant que Courtier en financement, Niveau 1, sous le numéro 14001345.Agence Maisons Balency de Caen (14000)
- Téléphone :
- 02 31 50 38 15
- Adressse :
- 133, rue Saint Jean
14000 Caen, France
