Maison neuve à
Autouillet
(78770) Référence :
TD2251775_3
Prix du projet : Maison avec Terrain
prix 547 225 €
- 7 pièces
- 4 chambres
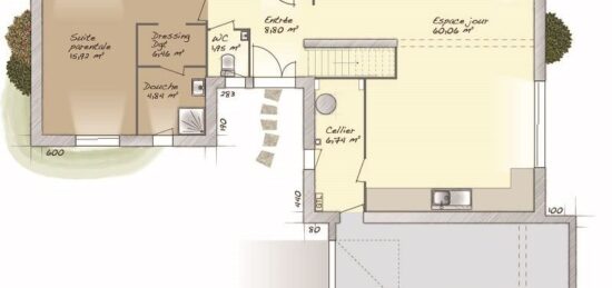
- Surface maison 160 m2
Autouillet : maison F7 (160 m²) à vendre
IDÉALEMENT SITUÉE - MAISON 7 PIÈCES NEUVE
Proche du Transilien N (gare de Garancières-La Queue, 40 min de Paris), en vente idéalement située dans Autouillet (78770), Maisons Balency Coignières vous propose cette maison de 7 pièces de 160 m² et de 551 m² de terrain.
C'est une maison de 2 niveaux. Elle est composée de quatre chambres, d'une cuisine et de deux salles de bains. La maison est neuve.
Cette maison se trouve dans un secteur recherché. On y trouve une école élémentaire.
Elle est proposée à l'achat pour 547 225 €.
Contactez notre agence (DUTEURTRE Thibault : 06-23-41-73-81) pour tout renseignement sur la maison ou sur les modalités de vente. Maisons Balency Coignières est là pour vous accompagner à toutes les étapes de l'achat.
Annonce proposée par un Agent Commercial Partenaire.
Mentions légales
Terrain proposé par un partenaire foncier selon disponibilités et autorisation de publicité au prix de 185 000 €. Hors droit d'enregistrement et frais de notaire. Maison proposée, avec un contrat de construction de maison individuelle, dans le cadre de la loi du 19/12/1990, au prix de 362 225 € (Hors branchements et raccordements, papiers peints, peintures, revêtement de sol dans les chambres, qui sont chiffrés dans les travaux qui restent à charge du client. Tarif modifiable sans préavis). Étiquette énergie : A. Différents modèles disponibles pour ce terrain. Assurances et garanties du constructeur comprises (RC professionnelle, décennale, dommage ouvrage).Agence Maisons Balency de Coignières (78310)
- Téléphone :
- 01 34 61 42 59
- Adressse :
- Domexpo Ouest
78310 Coignières, France
