Maison neuve à
Auvers-sur-Oise
(95430) Référence :
WB2456297_1
Prix du projet : Maison avec Terrain
prix 350 000 €
- 4 pièces
- 2 chambres
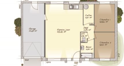
- Surface maison 70 m2
VENTE d'une maison de 4 pièces (70 m²) à Auvers-sur-Oise
MAISON 4 PIÈCES NEUVE - PROCHE DE PARIS
À vendre : localisée à quelques kilomètres de Paris, à Auvers-sur-Oise (95430), votre agence Maisons Balency Baillet-en-France est heureuse de vous présenter cette maison de 4 pièces de plain-pied de 70 m² et de 856 m² de terrain.
Son intérieur est composé de deux chambres, d'une cuisine et d'une salle de bains. Cette maison est neuve.
L'École Primaire Vavasseur, l'École Élémentaire les Aunaies et le Collège Charles François Daubigny sont implantés à moins de 10 minutes à pied. Niveau transports en commun, on trouve la gare Auvers-sur-Oise à quelques pas du bien. Il y a un tennis, deux commerces, une boucherie-charcuterie, une épicerie, une poissonnerie et un bureau de poste dans les environs.
Son prix de vente est de 350 000 €.
N'hésitez pas à prendre contact avec William BIDAN (06-22-45-69-29) pour tout renseignement sur cette maison.
Annonce proposée par un Agent Commercial Partenaire.
Mentions légales
Terrain proposé par un partenaire foncier selon disponibilités et autorisation de publicité au prix de 208 500 €. Hors droit d'enregistrement et frais de notaire. Terrain + Maison proposés au prix de 350 000 € (Hors branchements et raccordements, papiers peints, peintures, revêtement de sol dans les chambres. Tarif modifiable sans préavis). Etiquette énergie : A. Différents modèles disponibles pour ce terrain. Assurances et garanties du constructeur (RC professionnelle, décennale, dommage ouvrage, garantie de remboursement de l'acompte, livraison à prix et délai convenu) : https://www.maisons-balency.fr/informations-legales/. HEXAOM Services est enregistré auprès de l'ORIAS en tant que Courtier en financement, Niveau 1, sous le numéro 14001345.Agence Maisons Balency de Baillet-en-France (95560)
- Téléphone :
- 01 34 46 05 23
- Adressse :
- 81 rue de Paris
95560 Baillet-en-France, France
