Maison neuve à
Aviron (27930) Référence : RC2303808_3

Prix du projet : Maison avec Terrain

prix 278 427 €

  • 6 pièces
  • 4 chambres
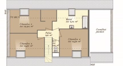
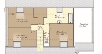
  • Surface maison 117 m2

Aviron : maison de 6 pièces (117 m²) à construire.
IDÉALEMENT SITUÉE - MAISON 6 PIÈCES NEUVE
À vendre : située à quelques kilomètres d'Évreux, laissez vous charmer par cette maison de 6 pièces de plain-pied de 117 m², idéalement située dans Aviron (27930).
Elle propose quatre chambres, une cuisine et deux salles de bains. La maison est neuve.
Le terrain de la propriété s'étend sur 571 m².
Cette maison est située dans un quartier recherché. Une école primaire y est implantée. Niveau transports en commun, on trouve deux gares (Évreux Normandie et La Bonneville-sur-Iton) à moins de 10 minutes en voiture. Les nationales N13 et N154 sont accessibles à moins de 4 km.
Elle est à vendre pour la somme de 278 427 €.
Contactez notre agence (Célia RENIER : 07-62-90-87-77) pour toute question sur la maison. Maisons Balency Boos vous accompagne dans toutes vos démarches et dans tous vos projets immobiliers.

Annonce proposée par un Agent Commercial Partenaire.

Mentions légales

Terrain proposé par un partenaire foncier selon disponibilités et autorisation de publicité au prix de 61 000 €. Hors droit d'enregistrement et frais de notaire. Terrain + Maison proposés au prix de 217 427 € (Hors branchements et raccordements, papiers peints, peintures, revêtement de sol dans les chambres. Tarif modifiable sans préavis). Etiquette énergie : A. Différents modèles disponibles pour ce terrain. Assurances et garanties du constructeur (RC professionnelle, décennale, dommage ouvrage, garantie de remboursement de l'acompte, livraison à prix et délai convenu) : https://www.maisons-balency.fr/informations-legales/. HEXAOM Services est enregistré auprès de l'ORIAS en tant que Courtier en financement, Niveau 1, sous le numéro 14001345.

Contactez l'agence de Boos

02 35 80 66 66

    * Champs obligatoires

    Vos informations sont traitées par HEXAOM et transmises à un conseiller commercial qui vous contactera afin de répondre à votre demande. Les plans et images présentés sur notre site sont la propriété d’HEXAOM et ne peuvent pas être reproduits sans son accord. Pour retrouver notre politique de protection des données personnelles et exercer vos droits conformément à la « loi informatique et liberté » cliquez-ici.