Maison neuve à
Aviron (27930) Référence : ED2416507_1

Prix du projet : Maison avec Terrain

prix 434 175 €

  • 7 pièces
  • 5 chambres
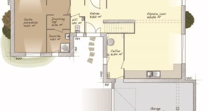
  • Surface maison 170 m2

A construire sur la commune d'Aviron, cette magnifique maison de 170 m².
PROCHE D'ÉVREUX

Nous sommes ravis de vous proposer cette grande maison de 7 pièces pour 170 m² habitable sur un terrain de 900 m² à Aviron (27930).
Sur 2 niveaux, avec ses beaux volumes elle dispose de cinq chambres, d'une cuisine et de trois salles de bains.

Proche d'une école primaire, vous trouverez également les gares Évreux Normandie et La Bonneville-sur-Iton à moins de 10 minutes en voiture.
Les nationales N13 et N154 sont accessibles à moins de 4 km.

Ce projet maison + terrain est proposée à l'achat pour 434 175 €.

Contactez notre agence Maisons Balency Gravigny, pour plus de renseignements.
Notre conseillère commerciale Élodie DUPRÉ (07-43-61-26-52) sera ravie de vous répondre.

Donnez vie à vos projets immobiliers avec Maisons Balency Gravigny.

Annonce proposée par un Agent Commercial Partenaire.

Mentions légales

Terrain proposé par un partenaire foncier selon disponibilités et autorisation de publicité au prix de 107 000 €. Hors droit d'enregistrement et frais de notaire. Terrain + Maison proposés au prix de 434 175 € (Hors branchements et raccordements, papiers peints, peintures, revêtement de sol dans les chambres. Tarif modifiable sans préavis). Etiquette énergie : A. Différents modèles disponibles pour ce terrain. Assurances et garanties du constructeur (RC professionnelle, décennale, dommage ouvrage, garantie de remboursement de l'acompte, livraison à prix et délai convenu) : https://www.maisons-balency.fr/informations-legales/. HEXAOM Services est enregistré auprès de l'ORIAS en tant que Courtier en financement, Niveau 1, sous le numéro 14001345.

Contactez l'agence de Gravigny

02 32 51 49 29

    * Champs obligatoires

    Vos informations sont traitées par HEXAOM et transmises à un conseiller commercial qui vous contactera afin de répondre à votre demande. Les plans et images présentés sur notre site sont la propriété d’HEXAOM et ne peuvent pas être reproduits sans son accord. Pour retrouver notre politique de protection des données personnelles et exercer vos droits conformément à la « loi informatique et liberté » cliquez-ici.