Maison neuve à
Ballainvilliers
(91160) Référence :
KM2444096_1
Prix du projet : Maison avec Terrain
prix 402 000 €
- 7 pièces
- 4 chambres
- Surface maison 151 m2
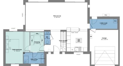
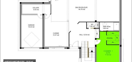
Maison T5 (87 m²) en vente à Ballainvilliers
QUARTIER RECHERCHÉ - MAISON 5 PIÈCES NEUVE
En vente : proche de la station Sainte-Geneviève-des-Bois du RER C (20 min de Paris), dans un secteur attractif de Ballainvilliers (91160), nous sommes heureux de vous proposer cette maison de 5 pièces de 87 m². Son intérieur se divise en trois chambres, une cuisine et deux salles de bains.
Le terrain du bien s'étend sur 467 m².
Cette maison compte 2 niveaux. Elle est neuve.
La maison se trouve dans un quartier prisé. Il y a l'École Primaire les Marais à moins de 10 minutes à pied. Niveau transports, on trouve les lignes de RER C, B et D, gares à moins de 10 minutes en voiture. On trouve un tennis, une bibliothèque, une boulangerie, un commerce et une supérette dans les environs.
Elle est proposée à l'achat pour 402 000 €.
Contactez au 06-51-51-80-60 pour plus d'informations sur la maison. Maisons Balency Ormoy est là pour vous accompagner à toutes les étapes de votre projet.
Annonce proposée par un Agent Commercial Partenaire.
Mentions légales
Terrain proposé par un partenaire foncier selon disponibilités et autorisation de publicité au prix de 220 000 €. Hors droit d'enregistrement et frais de notaire. Terrain + Maison proposés au prix de 402 000 € (Hors branchements et raccordements, papiers peints, peintures, revêtement de sol dans les chambres. Tarif modifiable sans préavis). Etiquette énergie : A. Différents modèles disponibles pour ce terrain. Assurances et garanties du constructeur (RC professionnelle, décennale, dommage ouvrage, garantie de remboursement de l'acompte, livraison à prix et délai convenu) : https://www.maisons-balency.fr/informations-legales/. HEXAOM Services est enregistré auprès de l'ORIAS en tant que Courtier en financement, Niveau 1, sous le numéro 14001345.Agence Maisons Balency de Ormoy (91540)
- Téléphone :
- 09 67 70 15 81
- Adressse :
- 23 chemin de Tournenfils - 1er étage
91540 Ormoy, France
