Maison neuve à
Ballancourt-sur-Essonne
(91610) Référence :
KM2419337_1
Prix du projet : Maison avec Terrain
prix 293 000 €
- 5 pièces
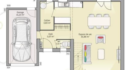
- 3 chambres
- Surface maison 90 m2
Maison 3 chambres à Ballancourt-sur-Essonne (91610), à moins d'une heure de PARIS, dès 293 000 €
Saisissez cette belle opportunité de construction à Ballancourt-sur-Essonne, sur une parcelle à bâtir de 455 m², longue de plus de 36 mètres !
Faites confiance aux Maisons Balency d'Ormoy pour vous réaliser une maison moderne de 90 m² qui sera idéalement située.
Ballancourt offre un cadre de vie agréable avec de nombreuses commodités à proximité : écoles, commerces, collège Montaigne et supermarchés accessibles en quelques minutes. La gare RER D de Ballancourt permet de rejoindre Paris en moins d'une heure, et plusieurs axes routiers facilitent les déplacements vers Évry ou Arpajon.
Avec Maisons Balency, du Groupe Hexaôm, 1er constructeur de maisons individuelles en France, réalisez votre projet sur mesure ou personnalisez l'un de nos modèles issus de notre large catalogue. Toutes nos constructions sont conformes à la réglementation environnementale RE2020, garantissant confort, performance énergétique et respect de l'environnement.
Appelez-nous sans plus attendre au 09 67 70 15 81 afin de débuter votre projet, de la recherche foncière à la remise des clés !
Maisons BALENCY - Agence d'Ormoy
23 chemin de Tournenfils - 91540 Ormoy
Annonce proposée par un Agent Commercial Partenaire.
Mentions légales
Terrain proposé par un partenaire foncier selon disponibilités et autorisation de publicité au prix de 150 000 €. Hors droit d'enregistrement et frais de notaire. Terrain + Maison proposés au prix de 143 000 € (Hors branchements et raccordements, papiers peints, peintures, revêtement de sol dans les chambres. Tarif modifiable sans préavis). Etiquette énergie : A. Différents modèles disponibles pour ce terrain. Assurances et garanties du constructeur (RC professionnelle, décennale, dommage ouvrage, garantie de remboursement de l'acompte, livraison à prix et délai convenu) : https://www.maisons-balency.fr/informations-legales/. HEXAOM Services est enregistré auprès de l'ORIAS en tant que Courtier en financement, Niveau 1, sous le numéro 14001345.Agence Maisons Balency de Ormoy (91540)
- Téléphone :
- 09 67 70 15 81
- Adressse :
- 23 chemin de Tournenfils - 1er étage
91540 Ormoy, France
