Maison neuve à
Banyuls-dels-Aspres
(66300) Référence :
MM2437235_2
Prix du projet : Maison avec Terrain
prix 424 000 €
- 5 pièces
- 4 chambres
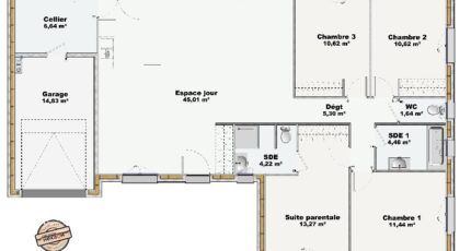
- Surface maison 113 m2
VENTE d'une maison ossature bois de 113 m² à Banyuls-dels-Aspres
À Banyuls-dels-Aspres (66300), maison neuve en vente :113 m² de surface sur 700 m² de terrain. Maison réalisée en ossature bois en France. Construction responsable alliant performance technique et respect de l'environnement.
Cette maison de 5 pièces est proposée à l'achat pour 424 000 €.
Prenez contact avec notre agence (Maryline MARIE : 06-10-47-27-59) pour plus de renseignements sur la maison de plain-pied. Maisons Balency Cabestany est là pour vous accompagner dans toutes vos démarches.
Mentions légales
Terrain proposé par un partenaire foncier selon disponibilités et autorisation de publicité au prix de 169 900 €. Hors droit d'enregistrement et frais de notaire. Terrain + Maison proposés au prix de 424 000 € (Hors branchements et raccordements, papiers peints, peintures, revêtement de sol dans les chambres. Tarif modifiable sans préavis). Etiquette énergie : A. Différents modèles disponibles pour ce terrain. Assurances et garanties du constructeur (RC professionnelle, décennale, dommage ouvrage, garantie de remboursement de l'acompte, livraison à prix et délai convenu) : https://www.maisons-balency.fr/informations-legales/. HEXAOM Services est enregistré auprès de l'ORIAS en tant que Courtier en financement, Niveau 1, sous le numéro 14001345.Agence Maisons Balency de Cabestany (66330)
- Téléphone :
- 04 68 63 14 52
- Adressse :
- 1 chemin de Saint Gaudérique
66330 Cabestany, France
