Maison neuve à
Barbizon
(77630) Référence :
CM2332965_1
Prix du projet : Maison avec Terrain
prix 910 000 €
- 7 pièces
- 5 chambres
- Surface maison 170 m2
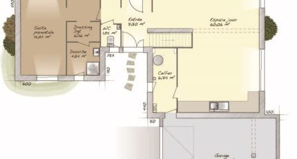
VENTE d'une maison F7 (170 m²) à Barbizon
MAISON 7 PIÈCES NEUVE - PROCHE D'ÉVRY-COURCOURONNES
À côté de la gare de Bois-le-Roi (Paris à 35 min avec le Transilien R), à vendre à Barbizon (77630), venez découvrir cette maison de 7 pièces de plain-pied de 170 m² et de 2 200 m² de terrain.
Son intérieur propose cinq chambres, une cuisine et trois salles de bains. La maison est neuve.
Il y a l'École Primaire Jean-François Millet à moins de 10 minutes à pied. Niveau transports en commun, on trouve la ligne de RER D (Vosves) ainsi que sept gares à moins de 10 minutes en voiture. On trouve plusieurs commerces, un bureau de poste, deux épiceries et deux boucheries-charcuteries à quelques minutes à peine.
Son prix de vente est de 910 000 €.
Prenez contact avec Christophe MONTANIER (tél : 06-10-23-51-22) pour obtenir de plus amples renseignements sur la maison, sur les modalités de vente ou sur les démarches à suivre.
Annonce proposée par un Agent Commercial Partenaire.
Mentions légales
Terrain proposé par un partenaire foncier selon disponibilités et autorisation de publicité au prix de 510 000 €. Hors droit d'enregistrement et frais de notaire. Terrain + Maison proposés au prix de 400 000 € (Hors branchements et raccordements, papiers peints, peintures, revêtement de sol dans les chambres. Tarif modifiable sans préavis). Etiquette énergie : A. Différents modèles disponibles pour ce terrain. Assurances et garanties du constructeur (RC professionnelle, décennale, dommage ouvrage, garantie de remboursement de l'acompte, livraison à prix et délai convenu) : https://www.maisons-balency.fr/informations-legales/. HEXAOM Services est enregistré auprès de l'ORIAS en tant que Courtier en financement, Niveau 1, sous le numéro 14001345.Agence Maisons Balency de Saint-Maur-des-Fossés (94100)
- Téléphone :
- 01 87 36 85 37
- Adressse :
- 12 avenue de la république
94100 Saint-Maur-des-Fossés, France
