Maison neuve à
Barbizon
(77630) Référence :
CM2332965_3
Prix du projet : Maison avec Terrain
prix 887 000 €
- 4 pièces
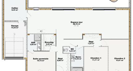
- 3 chambres
- Surface maison 120 m2
Barbizon : maison T4 (120 m²) en vente
MAISON 4 PIÈCES NEUVE - PROCHE D'ÉVRY-COURCOURONNES
À proximité du Transilien R (gare de Bois-le-Roi, 35 min de Paris), découvrez en vente à Barbizon (77630), cette maison de 4 pièces de plain-pied de 120 m². Elle compte trois chambres, une cuisine et deux salles de bains.
Le terrain de la propriété est de 2 200 m².
La maison est neuve.
On trouve l'École Primaire Jean-François Millet à moins de 10 minutes à pied. Niveau transports en commun, il y a la ligne de RER D (Vosves) ainsi que sept gares à moins de 10 minutes en voiture. Il y a plusieurs commerces, deux boucheries-charcuteries, un bureau de poste et deux épiceries à quelques minutes du bien.
Elle est proposée à l'achat pour 887 000 €.
Prenez contact avec notre agence (MONTANIER Christophe : 06-10-23-51-22) pour obtenir de plus amples informations sur cette maison.
Annonce proposée par un Agent Commercial Partenaire.
Mentions légales
Terrain proposé par un partenaire foncier selon disponibilités et autorisation de publicité au prix de 510 000 €. Hors droit d'enregistrement et frais de notaire. Terrain + Maison proposés au prix de 377 000 € (Hors branchements et raccordements, papiers peints, peintures, revêtement de sol dans les chambres. Tarif modifiable sans préavis). Etiquette énergie : A. Différents modèles disponibles pour ce terrain. Assurances et garanties du constructeur (RC professionnelle, décennale, dommage ouvrage, garantie de remboursement de l'acompte, livraison à prix et délai convenu) : https://www.maisons-balency.fr/informations-legales/. HEXAOM Services est enregistré auprès de l'ORIAS en tant que Courtier en financement, Niveau 1, sous le numéro 14001345.Agence Maisons Balency de Saint-Maur-des-Fossés (94100)
- Téléphone :
- 01 87 36 85 37
- Adressse :
- 12 avenue de la république
94100 Saint-Maur-des-Fossés, France
