Maison neuve à
Barbizon
(77630) Référence :
AM2352864_1
Prix du projet : Maison avec Terrain
prix 946 234 €
- 9 pièces
- 4 chambres
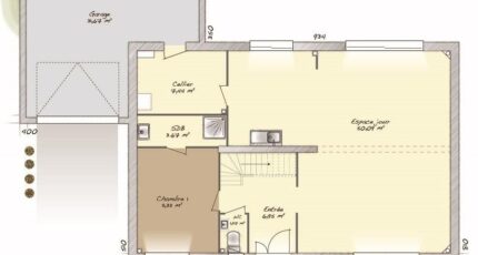
- Surface maison 186 m2
PROJET TERRAIN + MAISON + NOTAIRE + VIABILISATION = 946 234€
Proche de la gare de Bois-le-Roi (Paris à 35 min par le Transilien R), à vendre bénéficiant d'un emplacement d'exception dans Barbizon (77630), votre agence Maisons Balency Moret-Loing-et-Orvanne est ravie de vous proposer cette maison de 9 pièces de 186 m² et de 2 200 m² de terrain.
Il s'agit d'une maison de 2 niveaux. Son intérieur propose quatre chambres, une cuisine et deux salles de bains. Cette maison est neuve.
La maison se situe dans un secteur prisé. On trouve l'École Primaire Jean-François Millet à moins de 10 minutes à pied. Niveau transports, il y a la ligne de RER D (Vosves) ainsi que sept gares à moins de 10 minutes en voiture. Il y a cinq commerces, deux épiceries, deux boucheries-charcuteries et un bureau de poste à quelques minutes.
Elle est à vendre pour la somme de 946 234 €.
Contactez Arnaud MOINE (06-40-48-40-55) pour tout renseignement sur la propriété ou sur les démarches à suivre.
Annonce proposée par un Agent Commercial Partenaire.
Mentions légales
Terrain proposé par un partenaire foncier selon disponibilités et autorisation de publicité au prix de 510 000 €. Hors droit d'enregistrement et frais de notaire. Terrain + Maison proposés au prix de 436 234 € (Hors branchements et raccordements, papiers peints, peintures, revêtement de sol dans les chambres. Tarif modifiable sans préavis). Etiquette énergie : A. Différents modèles disponibles pour ce terrain. Assurances et garanties du constructeur (RC professionnelle, décennale, dommage ouvrage, garantie de remboursement de l'acompte, livraison à prix et délai convenu) : https://www.maisons-balency.fr/informations-legales/. HEXAOM Services est enregistré auprès de l'ORIAS en tant que Courtier en financement, Niveau 1, sous le numéro 14001345.Agence Maisons Balency de Moret-sur-Loing (77250)
- Téléphone :
- 09 78 81 26 91
- Adressse :
- 96 avenue de Fontainebleau
77250 Moret-sur-Loing, France
