Maison neuve à
Barbizon
(77630) Référence :
KM2367774_1
Prix du projet : Maison avec Terrain
prix 430 000 €
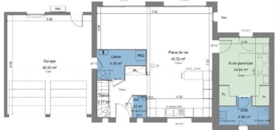
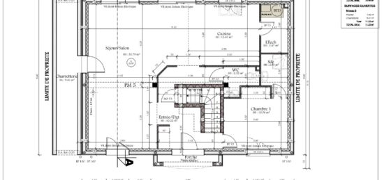
- 6 pièces
- 4 chambres
- Surface maison 150 m2
Opportunité foncière rare : bâtissez votre futur foyer dans un écrin de verdure préservé
PROPOSTION TERRAIN + CONSTRUCTION RE2020 ECONOME EN ENERGIE MAISONS BALENCY
Situé dans un secteur privilégié PROCHE DE BARBIZON ce hameau recherché offre un cadre de vie d'exception alliant sérénité et commodités urbaines. Maisons Balency, premier constructeur de maisons individuelles en France, depuis plus de 100 ans vous accompagne dans la réalisation de votre projet de construction sur-mesure.
Un emplacement stratégique
Le secteur bénéficie d'une accessibilité remarquable, idéale pour les actifs cherchant à concilier vie professionnelle et calme résidentiel :
Accès direct et rapide aux axes A6 et N104.
Gare du RER D à proximité (Paris en environ 50 minutes).
Lignes de bus (3631, 3421) assurant la liaison vers Melun.
La vie de famille au coeur du projet
L'atout majeur de ce hameau réside dans la proximité immédiate de l'éducation : l'école maternelle et élémentaire Joaquim de Château Villard est située directement au sein du hameau. Un avantage "coup de coeur" permettant aux enfants d'étudier en toute sécurité à deux pas de la maison. Les collèges et lycées sont desservis par des transports scolaires réguliers.
Un quotidien facilité par les services
Profitez d'une offre commerciale complète à moins de 10 minutes :
Centres commerciaux de Villiers-en-Bière (Carrefour) et Grand Frais.
Proximité immédiate des pôles d'excellence de Bois Sénart et Carré Sénart.
Des conditions financières et techniques exceptionnelles
Réaliser votre projet dans ce secteur, c'est bénéficier d'avantages économiques rares pour optimiser votre budget :
Éligibilité PTZ (Zone A) : Profitez de conditions de financement avantageuses.
Fiscalité réduite : Frais de notaire réduits, exonération totale de la part communale de la taxe d'aménagement et de la taxe de raccordement à l'égout (PFAC).
Prêt à bâtir : Terrains entièrement viabilisés (y compris la fibre optique) avec les clôtures sur rue d
Mentions légales
Terrain proposé par un partenaire foncier selon disponibilités et autorisation de publicité au prix de 128 000 €. Hors droit d'enregistrement et frais de notaire. Terrain + Maison proposés au prix de 430 000 € (Hors branchements et raccordements, papiers peints, peintures, revêtement de sol dans les chambres. Tarif modifiable sans préavis). Etiquette énergie : A. Différents modèles disponibles pour ce terrain. Assurances et garanties du constructeur (RC professionnelle, décennale, dommage ouvrage, garantie de remboursement de l'acompte, livraison à prix et délai convenu) : https://www.maisons-balency.fr/informations-legales/. HEXAOM Services est enregistré auprès de l'ORIAS en tant que Courtier en financement, Niveau 1, sous le numéro 14001345.Agence Maisons Balency de Ormoy (91540)
- Téléphone :
- 09 67 70 15 81
- Adressse :
- 23 chemin de Tournenfils - 1er étage
91540 Ormoy, France
