Maison neuve à
Barquet (27170) Référence : EL2306646_5

Prix du projet : Maison avec Terrain

prix 325 800 €

  • 8 pièces
  • 5 chambres
  • Surface maison 145 m2

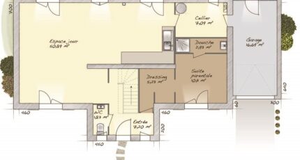
Barquet : maison de 8 pièces (145 m²) à vendre
EMPLACEMENT PRIVILÉGIÉ - MAISON 8 PIÈCES NEUVE
En vente à quelques kilomètres d'Évreux, ayez le coup de coeur pour, bénéficiant d'un emplacement privilégié dans Barquet (27170), cette maison de 8 pièces de 145 m².
C'est une maison de 2 niveaux. Son intérieur offre cinq chambres, une cuisine et trois salles de bains. Cette maison est neuve.
Le terrain du bien est de 1 659 m².
Cette maison se trouve dans un secteur attractif. On y trouve une école élémentaire. Côté transports en commun, il y a les gares Romilly-la-Puthenaye et Beaumont-le-Roger à moins de 10 minutes en voiture. Il y a un accès à la nationale N13 à 18 km.
Elle est à vendre pour la somme de 325 800 €.
Prenez contact avec notre agence (LEOVANT Aurélien : 02-35-80-66-66) pour plus d'informations sur la maison et sur les modalités de vente. Faites de vos projets immobiliers une réalité avec Maisons Balency Boos.

Annonce proposée par un Agent Commercial Partenaire.

Mentions légales

Terrain proposé par un partenaire foncier selon disponibilités et autorisation de publicité au prix de 35 000 €. Hors droit d'enregistrement et frais de notaire. Terrain + Maison proposés au prix de 290 800 € (Hors branchements et raccordements, papiers peints, peintures, revêtement de sol dans les chambres. Tarif modifiable sans préavis). Etiquette énergie : A. Différents modèles disponibles pour ce terrain. Assurances et garanties du constructeur (RC professionnelle, décennale, dommage ouvrage, garantie de remboursement de l'acompte, livraison à prix et délai convenu) : https://www.maisons-balency.fr/informations-legales/. HEXAOM Services est enregistré auprès de l'ORIAS en tant que Courtier en financement, Niveau 1, sous le numéro 14001345.

Contactez l'agence de Boos

02 35 80 66 66

    * Champs obligatoires

    Vos informations sont traitées par HEXAOM et transmises à un conseiller commercial qui vous contactera afin de répondre à votre demande. Les plans et images présentés sur notre site sont la propriété d’HEXAOM et ne peuvent pas être reproduits sans son accord. Pour retrouver notre politique de protection des données personnelles et exercer vos droits conformément à la « loi informatique et liberté » cliquez-ici.