Maison neuve à
Baulne
(91590) Référence :
PM2300413_1
Prix du projet : Maison avec Terrain
prix 237 000 €
- 6 pièces
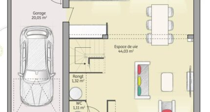
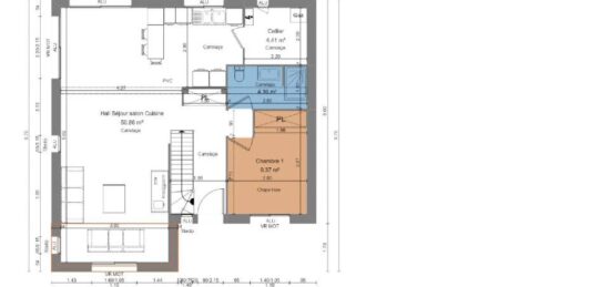
- 4 chambres
- Surface maison 91 m2
Maison Contemporaine de 6 pièces à Baulne (91590) - à partir de 237 000 €
À Baulne, charmante commune de l'Essonne, faites confiance aux Maisons Balency d'Ormoy pour vous réaliser votre maison à étage de 91 m² sur un terrain viabilisé de 321 m². Proche du centre-bourg, des écoles et des commerces, ce projet offre un cadre de vie agréable à seulement quelques minutes de la gare de La Ferté-Alais (ligne D du RER, environ 50 min de Paris). Vous profiterez également de la proximité du supermarché Intermarché, du collège Claude Érignac et du parc naturel du Gâtinais, accessibles en quelques minutes en voiture.
Avec Maisons Balency, du Groupe Hexaôm, 1er constructeur de maisons individuelles en France, vous bénéficiez d'une construction respectant les dernières normes RE2020. Nous concevons pour vous un projet entièrement personnalisable, qu'il s'agisse d'un modèle sur mesure ou d'une adaptation de nos collections existantes.
Maisons BALENCY - Agence d'Ormoy
23 chemin de Tournenfils, 91540 ORMOY
📞 09 67 70 15 81
Annonce proposée par un Agent Commercial Partenaire.
Mentions légales
Terrain proposé par un partenaire foncier selon disponibilités et autorisation de publicité au prix de 95 000 €. Hors droit d'enregistrement et frais de notaire. Terrain + Maison proposés au prix de 142 000 € (Hors branchements et raccordements, papiers peints, peintures, revêtement de sol dans les chambres. Tarif modifiable sans préavis). Etiquette énergie : A. Différents modèles disponibles pour ce terrain. Assurances et garanties du constructeur (RC professionnelle, décennale, dommage ouvrage, garantie de remboursement de l'acompte, livraison à prix et délai convenu) : https://www.maisons-balency.fr/informations-legales/. HEXAOM Services est enregistré auprès de l'ORIAS en tant que Courtier en financement, Niveau 1, sous le numéro 14001345.Agence Maisons Balency de Ormoy (91540)
- Téléphone :
- 09 67 70 15 81
- Adressse :
- 23 chemin de Tournenfils - 1er étage
91540 Ormoy, France
